Зарегистрироваться /

Аренда Офиса ул. Воздвиженская в Киеве / W-7436656

Коммерческая недвижимость
Цена:
187 000 грн.
/месяц
$
4 310 $ (1$ = 43.45 грн.)
3 630 € (1€ = 51.5 грн.)
Профиль:
Площадь:
268 м²
Цена за м²:
698 грн.
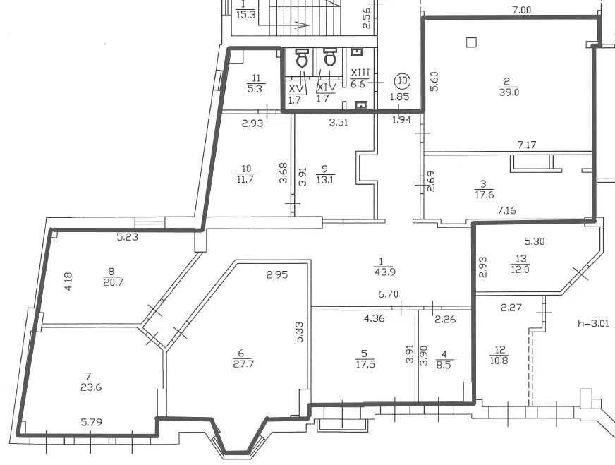
Вільне комерційне приміщення по вул. Воздвиженська 45-47-49, бізнес-центр В45. 2 поверх, з ремонтом, приміщення пропонується БЕЗ МЕБЛІВ Планування - вхідна група, переговорна кімната, 5 кабінетів, архівна/господарська кімната, кухня + обідня кімната. Площа - 228,6 м2, з коефіцієнтом загальних площ (1,17) - 267,5 м2. Є підземний паркінг для укриття під час тривог. Генератор на весь бізнес-центр. Орендна ставка - 600 грн/м2 з ПДВ експлуатаційні - 100 грн/м2 з ПДВ + комунальні по лічильникам.
Скачать .pdf

Посредник

Марія

Обновлено: 19 Февраля 2026
Код объекта: W-7436656
CAPTCHA CAPTCHA на основе изображений
Введите символы, изображенные на рисунке.

Пожаловаться на объявление

W-7436656 |

Укажите причину жалобы

Максимальное количество символов 500
CAPTCHA CAPTCHA на основе изображений
Введите символы, изображенные на рисунке.

Схожі оголошення