Зарегистрироваться /

Аренда Офиса ул. Большая Васильковская (Красноармейская) 77 в Киеве / W-7434910

Коммерческая недвижимость
Цена:
176 000* грн.
/месяц
$
4 080 $ (1$ = 43.25 грн.)
3 450 € (1€ = 51.15 грн.)
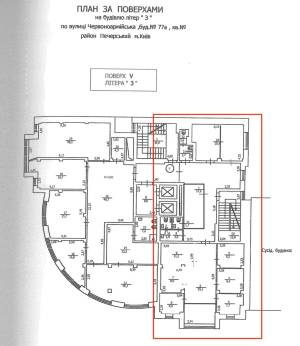
м.Київ, вул. Велика Васильківська, 77, поруч з Костелом. станція метро "Олімпійська" та "Палац України" -10 хвилин Вільні офісні приміщення: 220 кв.м. 5-й поверх, 14$+5$/кв.м. В місяць; Планування: опенспейси та кабінети, кухня, с/в, душові Інженерія: центральне кондиціонування, вентиляція, опалення власне,     дизель генератор на весь БЦ                                                                                                       в приміщенні змонтована електромережа та компьютерна мережа, пожежна сигналізація Безпека: охорона 24/7, система контроль доступа на поверх підземний паркінг укриття облаштовано в паркінгу 4180дол
Скачать .pdf

Посредник

Ярослав

Обновлено: 7 Февраля 2026
Код объекта: W-7434910
CAPTCHA CAPTCHA на основе изображений
Введите символы, изображенные на рисунке.

Пожаловаться на объявление

W-7434910 |

Укажите причину жалобы

Максимальное количество символов 500
CAPTCHA CAPTCHA на основе изображений
Введите символы, изображенные на рисунке.

Схожі оголошення