Зарегистрироваться /

Аренда Офиса Кловский спуск 7 в Киеве / W-7447860

Коммерческая недвижимость
Цена:
185 000* грн.
/месяц
$
4 200 $ (1$ = 44.15 грн.)
3 570 € (1€ = 51.9 грн.)
Профиль:
Площадь:
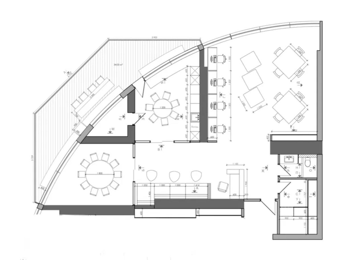
160 м²
Цена за м²:
1 160 грн.
160м.кв. 38п 4200дол Генератор на ліфт, воду і опалення підʼєднан. Безперебійне живлення офісу. Унікальний стильний дизайнерський офіс із найвищою терасою в Україні на висоті 120м. Панорамні вікна, вид на вул. Мечникова та центр Києва, стелі 3,5 м. Офіс повністю укомплектований всіма необхідними новими меблями та технікою, до 16 робочих місць. - ДБЖ+АКБ 5КВт для автономної роботи всього офісу при відключенні електроенергії до 15 годин. - Припливно-витяжна система подачі свіжого повітря Daikin - Мультизонна система центрального кондиціювання (кожна кімната регулюється індивідуально). - Оптоволокно, Гігабіт GPon Інтернет Нежитловий фонд.
Скачать .pdf

Посредник

Юрій

Обновлено: 23 Апреля 2026
Код объекта: W-7447860
CAPTCHA CAPTCHA на основе изображений
Введите символы, изображенные на рисунке.

Пожаловаться на объявление

W-7447860 |

Укажите причину жалобы

Максимальное количество символов 500
CAPTCHA CAPTCHA на основе изображений
Введите символы, изображенные на рисунке.

Схожі оголошення