Зарегистрироваться /

Аренда Офиса ул. Межигорская в Киеве / W-7432105

Коммерческая недвижимость
Цена:
28 000 грн.
/месяц
$
646 $ (1$ = 43.25 грн.)
548 € (1€ = 51.15 грн.)
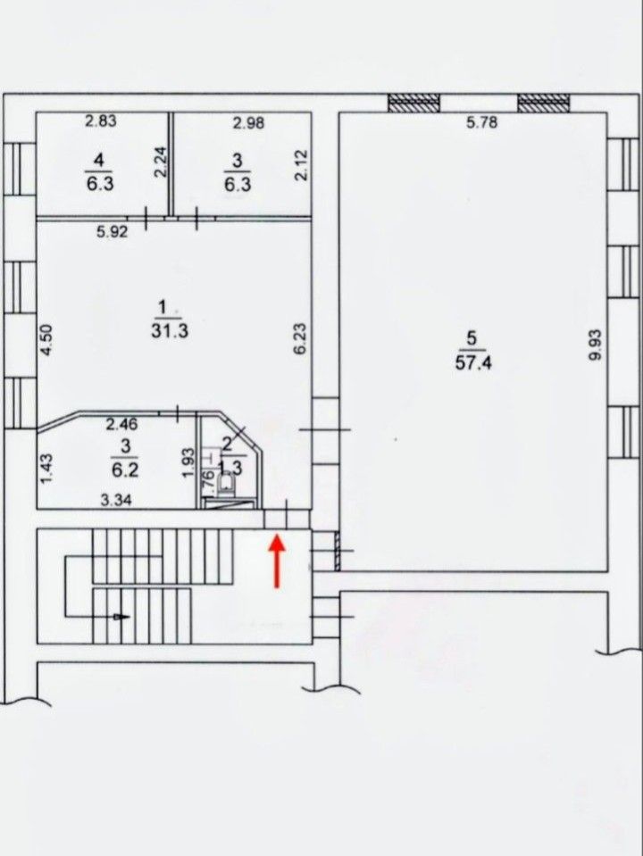
Контрактова пл метро,вул Межигірська 13, офіс 3 поверх, житловий фонд,4 кабінета 110м добрий стан, кондіционери,кухня, метро 2хв,28000грн + комунальні,(Комісія 50%)
Скачать .pdf

Посредник

Олександр

Обновлено: 8 Февраля 2026
Код объекта: W-7432105
CAPTCHA CAPTCHA на основе изображений
Введите символы, изображенные на рисунке.

Пожаловаться на объявление

W-7432105 |

Укажите причину жалобы

Максимальное количество символов 500
CAPTCHA CAPTCHA на основе изображений
Введите символы, изображенные на рисунке.

Схожі оголошення