Зарегистрироваться /

Продажа квартиры ул. Татарская 36/5 в Киеве / W-7431299

1-комнатная квартира
Цена:
2 382 000* грн.
$
55 000 $ (1$ = 43.3 грн.)
47 100 € (1€ = 50.6 грн.)
Кол-во комнат:
Площадь (общая):
32.1
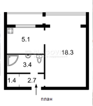
Татарська 36/5, метро Лукʼянівська -15 хвилин пішки. Чеський проєкт. Будинок у гарному стані Чисті, доглянуті парадні, кодовий замок. Парковка біля будинку. Квартира розташована на 6-му поверсі 9-поверхового будинку. Площа: 33,0 / 18,3 / 5,1 м², санвузол сумісний. У квартирі виконано чорнові ремонтні роботи: • нова стяжка підлоги • металопластикові вікна • засклена лоджія з кімнати • нова функціональна розводка електрики • сучасні радіатори опалення • броньовані вхідні двері. Квартира дуже тепла та світла, комфортна для проживання. З вікон відкривається приємний вид. Відчувається затишок і домашнє тепло. Підходить для поограми Євідновлення.
Скачать .pdf

Посредник

Олена Дашко

Обновлено: 11 Января 2026
Код объекта: W-7431299
CAPTCHA CAPTCHA на основе изображений
Введите символы, изображенные на рисунке.

Пожаловаться на объявление

W-7431299 |

Укажите причину жалобы

Максимальное количество символов 500
CAPTCHA CAPTCHA на основе изображений
Введите символы, изображенные на рисунке.

Схожі оголошення

  • Продажа квартиры ул. Глубочицкая 43 корпус 1 в Киеве / G-1928613 (ул. Глубочицкая, 43 корпус 1) 2 598 000* грн.

    Продажа квартиры ул. Глубочицкая 43 корпус 1 в Киеве / G-1928613

  • Продажа квартиры ул. Зоологическая 4а в Киеве / W-7431009 (ул. Зоологическая, 4а) 2 252 000* грн.

    Продажа квартиры ул. Зоологическая 4а в Киеве / W-7431009

  • Продажа квартиры ул. Ростиславская (Рыбалко Маршала) 5а в Киеве / Q-9668 (ул. Ростиславская (Рыбалко Маршала), 5а) 2 567 000 грн.

    Продажа квартиры ул. Ростиславская (Рыбалко Маршала) 5а в Киеве / Q-9668

  • Продажа квартиры ул. Ростиславская (Рыбалко Маршала) 5а в Киеве / I-37846 (ул. Ростиславская (Рыбалко Маршала), 5а) 2 468 000* грн.

    Продажа квартиры ул. Ростиславская (Рыбалко Маршала) 5а в Киеве / I-37846

  • Продажа квартиры ул. Салютная 11 в Киеве / W-7275787 (ул. Салютная, 11) 2 382 000* грн.

    Продажа квартиры ул. Салютная 11 в Киеве / W-7275787

  • Продажа квартиры Вирского Павла бульв. (Саратовская) 53/51 в Киеве / W-7430741 (Вирского Павла бульв. (Саратовская), 53/51) 2 598 000* грн.

    Продажа квартиры Вирского Павла бульв. (Саратовская) 53/51 в Киеве / W-7430741