Зарегистрироваться /

Аренда Офиса ул. Нижний Вал в Киеве / W-7428588

Коммерческая недвижимость
Цена:
629 000* грн.
/месяц
$
14 800 $ (1$ = 42.49 грн.)
12 600 € (1€ = 49.95 грн.)
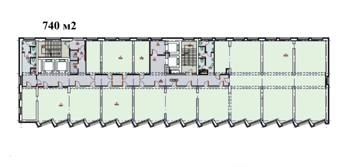
Оренда офісного приміщення в БЦ на вул. Нижній вал. Площа 740 м2. П'ятий поверх.Займає окремий поверх. Кабінетна система, кухня, два блоки санвузлів., Всі комунікації, охорона, укриття. Безперебійне електроживлення. Розвинута інфраструктура, метро Контрактова площа - 10 хвилин. Вартість - 20 дол/м2 з ПДВ. Без комисії.
Скачать .pdf

Посредник

Олександр

Обновлено: 19 Декабря 2025
Код объекта: W-7428588
CAPTCHA CAPTCHA на основе изображений
Введите символы, изображенные на рисунке.

Пожаловаться на объявление

W-7428588 |

Укажите причину жалобы

Максимальное количество символов 500
CAPTCHA CAPTCHA на основе изображений
Введите символы, изображенные на рисунке.

Схожі оголошення