Зарегистрироваться /

Аренда Офиса ул. Сечевых Стрельцов (Артема) 44 в Киеве / W-7427087

Коммерческая недвижимость
Цена:
276 000* грн.
/месяц
$
6 500 $ (1$ = 42.5 грн.)
5 550 € (1€ = 49.8 грн.)
Профиль:
Площадь:
250 м²
Цена за м²:
1 110 грн.
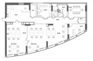
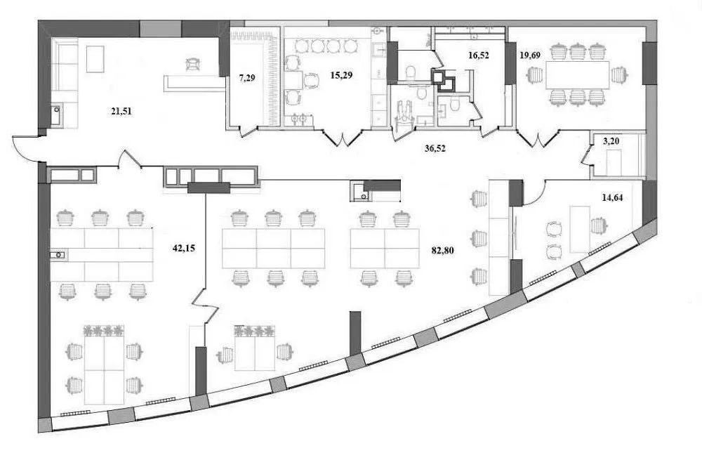
Здам офіс 250 кв.м. з ремонтом та меблями. Січових Стрільців вул. 44А, Шевченківський р-н., центр Києва. Нежитловий фонд, 2 поверх, Сучасний ЖК «А-52» 2020 року Оpen space 125 кв.м., кабінет керівника, переговорні кімнати, кухня, 3 санвузли (в т.ч. з душовою), гардеробна, ресепшн. Себлі на 25 робочих місць Система центрального кондиціонування. Охайна вхідна група, консьєрж сервіс, доступ 24/7. В будинку є підземний паркінг, та облаштоване укриття. 15 хвилин до метро Лук’янівська та метро Золоті ворота. 6500дол
Скачать .pdf

Посредник

Ярослав

Обновлено: 11 Декабря 2025
Код объекта: W-7427087
CAPTCHA CAPTCHA на основе изображений
Введите символы, изображенные на рисунке.

Пожаловаться на объявление

W-7427087 |

Укажите причину жалобы

Максимальное количество символов 500
CAPTCHA CAPTCHA на основе изображений
Введите символы, изображенные на рисунке.

Схожі оголошення