Зарегистрироваться /

Аренда Офиса ул. Пимоненко Николая 13 в Киеве / W-7418805

Коммерческая недвижимость
Цена:
261 000* грн.
/месяц
$
6 070 $ (1$ = 43.05 грн.)
5 060 € (1€ = 51.65 грн.)
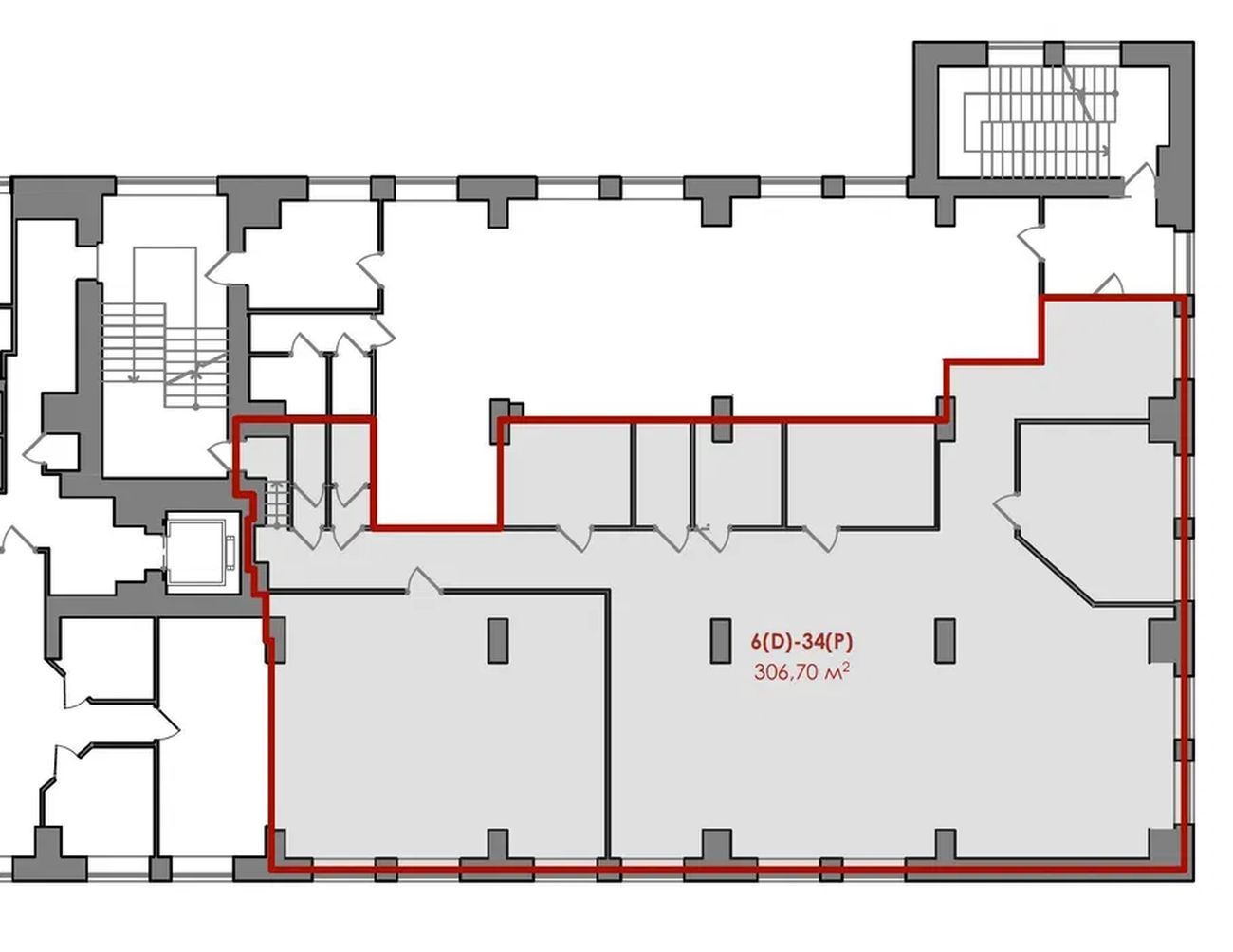
Пропонується в оренду офіс у бізнес-центрі "Business City". Корпус 6, 3 поверх, площа – 343,6 м². Формат приміщення: Змішане планування (Open Space + кабінети); 1 вхід; Санвузли. Автономне опалення; Безперебійна електрика (генератор); Автономне водопостачання та каналізація; Мультизональна система кондиціонування та вентиляції; Безперебійний інтернет (оптичне волокно); Інфраструктура бізнес-центру: Лаунж-зони у холах корпусів; Їдальня, кафе; Дворик із ландшафтним дизайном для перерви на каву; Зона барбекю для відпочинку з колегами та партнерами; Укриття з опаленням, меблями та Wi-Fi; Просторий обладнаний конференц-зал (безкоштовний для резидентів); Велика парковка на 430 авто, стоянка для велосипедів; Зарядні станції для електрокарів. БЦ "Business City" розташований на вул. Пимоненка, 13. Станція метро Лук’янівська – 10 хвилин пішки. Орендна ставка: $9 / м² + OPEX $5.72/ м² + ПДВ. Фінальна вартість: $6067/ місяць (з ПДВ).
Скачать .pdf

Посредник

Ярослав

Обновлено: 29 Января 2026
Код объекта: W-7418805
CAPTCHA CAPTCHA на основе изображений
Введите символы, изображенные на рисунке.

Пожаловаться на объявление

W-7418805 |

Укажите причину жалобы

Максимальное количество символов 500
CAPTCHA CAPTCHA на основе изображений
Введите символы, изображенные на рисунке.

Схожі оголошення