Зарегистрироваться /

Продажа квартиры ул. Здановской Юлии (Ломоносова) 58 в Киеве / W-7426945

2-комнатная квартира
Цена:
5 527 000* грн.
$
130 000 $ (1$ = 42.55 грн.)
110 000 € (1€ = 50.15 грн.)
Кол-во комнат:
Площадь (общая):
83.9
Этаж/Этажность:
10/12
Материал стен:
Кирпич
Материал пола:
Ламинат
Парковка:
да
Ремонт (состояние):
с евроремонтом
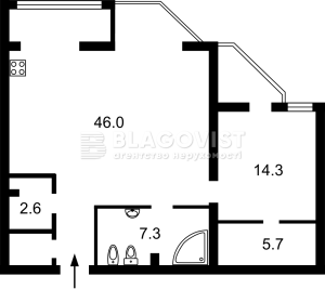
Пропонується на продаж стильна та затишна 2-кімнатна квартира з дизайнерським ремонтом в сучасному монолітному будинку. Квартира знаходиться на 10-му поверсі 13-поверхового будинку, площа 84 м² (14,3 м² — кухня, 46 м² — житлова площа). Особливості квартири: Простора кухня-студія, поєднана з вітальнею, з чудовим краєвидом Спальня з гардеробною кімнатою та балконом Великий суміжний санвузол Меблі та побутова техніка включені у вартість Місця для зберігання речей — все продумано для вашого комфорту Особливості будинку та інфраструктура: Підземний та наземний паркінг Охорона, цілодобове відеоспостереження Домофон, 2 ліфти, Консьєрж Під'їзди в хорошому стані Висота стелі — 2,75 м Розташування та транспорт: 10 хвилин пішки до ст. м. «Виставковий центр» Зупинка автобусів 38 поруч Поруч магазини (Новус, Сільпо, Еко-лавка), Спорт Лайф, продуктовий ринок
Скачать .pdf

Посредник

Алиса

Обновлено: 24 Декабря 2025
Код объекта: W-7426945
CAPTCHA CAPTCHA на основе изображений
Введите символы, изображенные на рисунке.

Пожаловаться на объявление

W-7426945 |

Укажите причину жалобы

Максимальное количество символов 500
CAPTCHA CAPTCHA на основе изображений
Введите символы, изображенные на рисунке.

Схожі оголошення

  • Продажа квартиры ул. Кишки Самийла (Конева Маршала) 5г в Киеве / W-7409244 (ул. Кишки Самийла (Конева Маршала), 5г) 5 319 000* грн.

    Продажа квартиры ул. Кишки Самийла (Конева Маршала) 5г в Киеве / W-7409244

  • Продажа квартиры ул. Братьев Шемет 9 в новостройке в Киеве / W-7395959 (ул. Братьев Шемет, 9) 5 914 000* грн.

    Продажа квартиры ул. Братьев Шемет 9 в новостройке в Киеве / W-7395959

  • Продажа квартиры ул. Саксаганского 36а в Киеве / W-7419153 (ул. Саксаганского, 36а) 5 106 000* грн.

    Продажа квартиры ул. Саксаганского 36а в Киеве / W-7419153

  • Продажа квартиры ул. Жилянская 68 в Киеве / L-31773 (ул. Жилянская, 68) 5 872 000* грн.

    Продажа квартиры ул. Жилянская 68 в Киеве / L-31773

  • Продажа квартиры ул. Максимовича Михаила (Трутенко Онуфрия) 26б в новостройке в Киеве / W-7408600 (ул. Максимовича Михаила (Трутенко Онуфрия), 26б) 5 914 000* грн.

    Продажа квартиры ул. Максимовича Михаила (Трутенко Онуфрия) 26б в новостройке в Киеве / W-7408600

  • Продажа квартиры ул. Максимовича Михаила (Трутенко Онуфрия) 32а в новостройке в Киеве / W-7427634 (ул. Максимовича Михаила (Трутенко Онуфрия), 32а) 5 744 000* грн.

    Продажа квартиры ул. Максимовича Михаила (Трутенко Онуфрия) 32а в новостройке в Киеве / W-7427634

  • Продажа квартиры ул. Метрологическая 9в в Киеве / Q-26935 (ул. Метрологическая, 9в) 4 978 000* грн.

    Продажа квартиры ул. Метрологическая 9в в Киеве / Q-26935

  • Продажа квартиры ул. Паньковская 27/78 в Киеве / W-7406810 (ул. Паньковская, 27/78) 5 404 000* грн.

    Продажа квартиры ул. Паньковская 27/78 в Киеве / W-7406810

  • Продажа квартиры ул. Максимовича Михаила (Трутенко Онуфрия) 24а в новостройке в Киеве / W-7426934 (ул. Максимовича Михаила (Трутенко Онуфрия), 24а) 5 829 000* грн.

    Продажа квартиры ул. Максимовича Михаила (Трутенко Онуфрия) 24а в новостройке в Киеве / W-7426934

  • Продажа квартиры ул. Васильковская 37г в Киеве / D-40929 (ул. Васильковская, 37г) 5 659 000* грн.

    Продажа квартиры ул. Васильковская 37г в Киеве / D-40929

  • Продажа квартиры ул. Максимовича Михаила (Трутенко Онуфрия) 26в в Киеве / R-53546 (ул. Максимовича Михаила (Трутенко Онуфрия), 26в) 5 021 000* грн.

    Продажа квартиры ул. Максимовича Михаила (Трутенко Онуфрия) 26в в Киеве / R-53546

  • Продажа квартиры ул. Максимовича Михаила (Трутенко Онуфрия) 26д в Киеве / Q-21919 (ул. Максимовича Михаила (Трутенко Онуфрия), 26д) 5 191 000* грн.

    Продажа квартиры ул. Максимовича Михаила (Трутенко Онуфрия) 26д в Киеве / Q-21919