Зарегистрироваться /

Продажа квартиры ул. Речная 4 в Киеве / W-7421164

3-комнатная квартира
Цена:
9 679 000* грн.
$
228 000 $ (1$ = 42.45 грн.)
196 000 € (1€ = 49.35 грн.)
Жилой комплекс:
Кол-во комнат:
Площадь (общая):
117
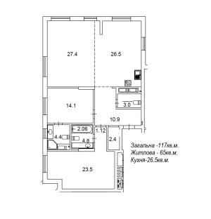
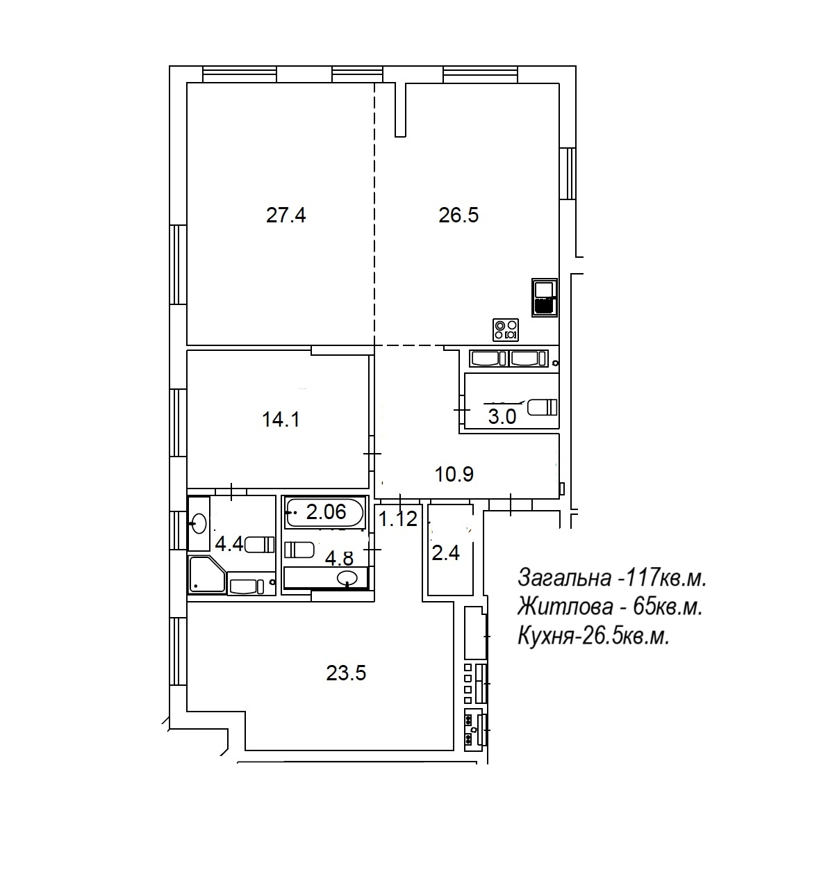
Продаж 3-к.квартири, 117кв.м. ЖК КАМЕРТОН, вул.Річкова (Річна), 4. Будинок бізнес рівня, розташований у Шевченківському районі, на перетині двох вулиць - Дмитрівська та Річкова, в тихому центрі міста. ЗАГАЛЬНА площа - 117кв.м. Н -3м Передпокій - 10.9кв.м. Комора -2.4кв.м. ЖИТЛОВА - 65кв.м. ТРИ окремі кімнати - 23.5кв.м., 14.1кв.м., 27.4кв.м. КУХНЯ - 26.5кв.м. Три санвузли - 4.8кв.м. + 4.4кв.м. + 3.0кв.м. Монол.-каркасний будинок, утеплений фасад. Затишний хол першого поверху з каміном, - висока стеля, та оздоблення з якісних матеріалів. Територія розділена на активну та тиху зону. Будинок має внутрішній сквер. Цілодобова охорона, система відеонагляду. З поверху на ліфті можна потрапити в паркінг, Розвинена інфраструктура. Поруч розташовані супермаркет, кафе, банки, дитячий садок, гімназія. Будинок введено в експлуатацію, можливість відразу зайти на ремонт квартири... ПРОПОЗИЦІЯ АКТУАЛЬНА. Перегляд по домовленості, телефонуйте у будь який час.
Скачать .pdf

Владелец

Tatyana

Обновлено: 25 Ноября 2025
Код объекта: W-7421164
CAPTCHA CAPTCHA на основе изображений
Введите символы, изображенные на рисунке.

Пожаловаться на объявление

W-7421164 |

Укажите причину жалобы

Максимальное количество символов 500
CAPTCHA CAPTCHA на основе изображений
Введите символы, изображенные на рисунке.

Схожі оголошення

  • Продажа квартиры ул. Кудрявская 24а в Киеве / L-31400 (ул. Кудрявская, 24а) 9 127 000* грн.

    Продажа квартиры ул. Кудрявская 24а в Киеве / L-31400

  • Продажа квартиры ул. Костельная 7 в Киеве / W-7421251 (ул. Костельная, 7) 8 915 000* грн.

    Продажа квартиры ул. Костельная 7 в Киеве / W-7421251

  • Продажа квартиры ул. Чикаленко Евгения (Пушкинская) 12 в Киеве / Q-22386 (ул. Чикаленко Евгения (Пушкинская), 12) 8 957 000* грн.

    Продажа квартиры ул. Чикаленко Евгения (Пушкинская) 12 в Киеве / Q-22386

  • Продажа квартиры ул. Молдовская (Молдавская) 2 в новостройке в Киеве / W-7350715 (ул. Молдовская (Молдавская), 2) 10 190 000* грн.

    Продажа квартиры ул. Молдовская (Молдавская) 2 в новостройке в Киеве / W-7350715

  • Продажа квартиры ул. Хмельницкого Богдана 32 в Киеве / D-38657 (ул. Хмельницкого Богдана, 32) 10 610 000* грн.

    Продажа квартиры ул. Хмельницкого Богдана 32 в Киеве / D-38657

  • Продажа квартиры ул. Парково-Сырецкая (Шамрыло Тимофея) 4в в Киеве / W-7337037 (ул. Парково-Сырецкая (Шамрыло Тимофея), 4в) 9 764 000* грн.

    Продажа квартиры ул. Парково-Сырецкая (Шамрыло Тимофея) 4в в Киеве / W-7337037

  • Продажа квартиры ул. Пимоненко Николая 19 в новостройке в Киеве / W-7406798 (ул. Пимоненко Николая, 19) 9 339 000* грн.

    Продажа квартиры ул. Пимоненко Николая 19 в новостройке в Киеве / W-7406798

  • Продажа квартиры ул. Полтавская 10 в Киеве / Q-24782 (ул. Полтавская, 10) 9 551 000* грн.

    Продажа квартиры ул. Полтавская 10 в Киеве / Q-24782

  • Продажа квартиры ул. Бульварно-Кудрявская (Воровского) 9 в Киеве / W-7420189 (ул. Бульварно-Кудрявская (Воровского), 9) 10 610 000* грн.

    Продажа квартиры ул. Бульварно-Кудрявская (Воровского) 9 в Киеве / W-7420189

  • Продажа квартиры ул. Бульварно-Кудрявская (Воровского) 17 в Киеве / F-47334 (ул. Бульварно-Кудрявская (Воровского), 17) 9 088 000* грн.

    Продажа квартиры ул. Бульварно-Кудрявская (Воровского) 17 в Киеве / F-47334

  • Продажа квартиры ул. Черновола Вячеслава 25 в Киеве / Q-14055 (ул. Черновола Вячеслава, 25) 10 410 000* грн.

    Продажа квартиры ул. Черновола Вячеслава 25 в Киеве / Q-14055

  • Продажа квартиры ул. Златоустовская 25 в новостройке в Киеве / W-7424483 (ул. Златоустовская, 25) 9 339 000* грн.

    Продажа квартиры ул. Златоустовская 25 в новостройке в Киеве / W-7424483