Зарегистрироваться /

Продажа квартиры ул. Заболотного Академика 1 в Киеве / W-7421156

3-комнатная квартира
Цена:
5 606 000* грн.
$
133 000 $ (1$ = 42.15 грн.)
115 000 € (1€ = 48.75 грн.)
Кол-во комнат/Расположение:
Площадь (общая/жилая/кухни):
91/45/32
Этаж/Этажность:
3/10
Тип (серия) дома:
Спецпроект 2021-2025 гг
Материал стен:
Кирпич
Материал пола:
Стяжка
Материал перекрытий:
Железобетон
Количество, тип санузлов:
2, Разд.
Парковка:
да
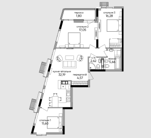
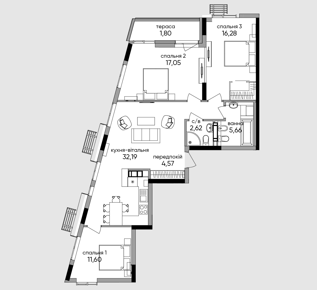
АКТУАЛЬНО! Продаж 3к квартири ЖК Метрополіс, розташований по вул. Заболотного, 1 буд 4 . Загальна площа - 91.1 кв.м. - передпокій - 4.57кв.м. - кухня-вітальня - 32.2кв.м. - Три окремі спальні - 11.6кв.м., 17.05кв.м, 16.28кв.м. - с/в - 5.62кв.м, ванна - 5.66кв.м, - тераса -1кв.м. Квартира Без оздоблення. Індивідуальне опалення. Панорамні вікна. Закрита територія, відеоспостереження - 24/7. Сучасні дитячі та спортивні майданчики. Закрита територія з парковою зоною. Гостьовий та Підземний паркінг з ліфтом на поверх. Поруч ст.метро Теремки та Іподром - 5хв ходу. Розглянемо всі пропозиції від реальних покупців. Телефонуйте у будь-який час.
Скачать .pdf

Посредник

Tatyana

Обновлено: 11 Ноября 2025
Код объекта: W-7421156
CAPTCHA CAPTCHA на основе изображений
Введите символы, изображенные на рисунке.

Пожаловаться на объявление

W-7421156 |

Укажите причину жалобы

Максимальное количество символов 500
CAPTCHA CAPTCHA на основе изображений
Введите символы, изображенные на рисунке.

Схожі оголошення

  • Продажа квартиры ул. Братьев Шемет 10/8 в Киеве / Q-21892 (ул. Братьев Шемет, 10/8) 5 079 000* грн.

    Продажа квартиры ул. Братьев Шемет 10/8 в Киеве / Q-21892

  • Продажа квартиры ул. Васильковская 23/16 в Киеве / W-7399392 (ул. Васильковская, 23/16) 5 269 000* грн.

    Продажа квартиры ул. Васильковская 23/16 в Киеве / W-7399392

  • Продажа квартиры ул. Кишки Самийла (Конева Маршала) 10/1 в Киеве / W-7393174 (ул. Кишки Самийла (Конева Маршала), 10/1) 6 027 000* грн.

    Продажа квартиры ул. Кишки Самийла (Конева Маршала) 10/1 в Киеве / W-7393174

  • Продажа квартиры ул. Максимовича Михаила (Трутенко Онуфрия) 3г в Киеве / W-7417227 (ул. Максимовича Михаила (Трутенко Онуфрия), 3г) 5 058 000* грн.

    Продажа квартиры ул. Максимовича Михаила (Трутенко Онуфрия) 3г в Киеве / W-7417227

  • Продажа квартиры ул. Метрологическая 15 в Киеве / P-33618 (ул. Метрологическая, 15) 5 269 000* грн.

    Продажа квартиры ул. Метрологическая 15 в Киеве / P-33618

  • Продажа квартиры ул. Метрологическая 107 в Киеве / R-69357 (ул. Метрологическая, 107) 5 690 000* грн.

    Продажа квартиры ул. Метрологическая 107 в Киеве / R-69357

  • Продажа квартиры Ясиноватский пер. 11 в новостройке в Киеве / W-7384181 (Ясиноватский пер., 11) 5 058 000* грн.

    Продажа квартиры Ясиноватский пер. 11 в новостройке в Киеве / W-7384181

  • Продажа квартиры ул. Максимовича Михаила (Трутенко Онуфрия) 32б в Киеве / W-7399843 (ул. Максимовича Михаила (Трутенко Онуфрия), 32б) 5 480 000* грн.

    Продажа квартиры ул. Максимовича Михаила (Трутенко Онуфрия) 32б в Киеве / W-7399843

  • Продажа квартиры ул. Максимовича Михаила (Трутенко Онуфрия) 9б в Киеве / G-1924367 (ул. Максимовича Михаила (Трутенко Онуфрия), 9б) 5 184 000* грн.

    Продажа квартиры ул. Максимовича Михаила (Трутенко Онуфрия) 9б в Киеве / G-1924367

  • Продажа квартиры ул. Саперно-Слободская 24 в Киеве / G-1988834 (ул. Саперно-Слободская, 24) 5 480 000* грн.

    Продажа квартиры ул. Саперно-Слободская 24 в Киеве / G-1988834

  • Продажа квартиры ул. Здановской Юлии (Ломоносова) 85а в Киеве / G-589162 (ул. Здановской Юлии (Ломоносова), 85а) 5 269 000* грн.

    Продажа квартиры ул. Здановской Юлии (Ломоносова) 85а в Киеве / G-589162

  • Продажа квартиры ул. Заболотного Академика 1а в Киеве / B-108472 (ул. Заболотного Академика, 1а) 5 480 000* грн.

    Продажа квартиры ул. Заболотного Академика 1а в Киеве / B-108472