Зарегистрироваться /

Аренда Офиса ул. Саксаганского 31 в Киеве / W-7415531

Коммерческая недвижимость
Цена:
22 500 грн.
/месяц
$
517 $ (1$ = 43.48 грн.)
443 € (1€ = 50.85 грн.)
Кол-во комнат:
4
Профиль:
Площадь:
90 м²
Этаж:
2
Цена за м²:
250 грн.
Ремонт (состояние):
с евроремонтом
Парковка:
да
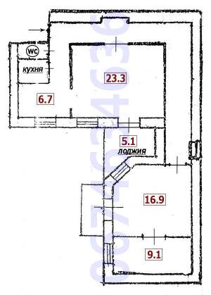
АРЕНДА ГОТОВОГО ОФИСА В ЦЕНТРЕ! - г. Киев, Исторический Центр; - ул. Саксаганского 31, 2 этаж, жилой фонд; - фасадный дом на перекрестке с ул. Антоновича (Горького); - метро Олимпийская - 4 мин; - метро площадь Украинских Героев (Толстого) - 7 мин; - метро Дворец Спорта - 9 мин; - вход через фасадное аккуратное парадное; - аренда готового офиса, помещения 90 м² с окнами в тихий двор; - холл-коридор, 4 кабинета, лоджия, балкон, мини-кухня, санузел; - офисный ремонт, кондиционеры, Интернет (компьютерная разводка), высота потолков 3,5 м; - парковка во дворе дома; - 22500 грн/месяц; - дополнительно коммунальные платежи по тарифам жилого фонда; - дополнительно 25 % комиссионных агентству недвижимости (единоразово); +380674634636 Приглашаем к сотрудничеству собственников недвижимости Посмотреть другие предложения нажимайте на опцию "Все объявления пользователя"
Скачать .pdf

Посредник

Мила

Обновлено: 13 Января 2026
Код объекта: W-7415531
CAPTCHA CAPTCHA на основе изображений
Введите символы, изображенные на рисунке.

Пожаловаться на объявление

W-7415531 |

Укажите причину жалобы

Максимальное количество символов 500
CAPTCHA CAPTCHA на основе изображений
Введите символы, изображенные на рисунке.

Схожі оголошення

  • Аренда Офиса ул. Антоновича Владимира (Горького) в Киеве / H-27063 (Офис, ул. Антоновича Владимира (Горького)) 20 900* грн./месяц

    Аренда Офиса ул. Антоновича Владимира (Горького) в Киеве / H-27063

  • Аренда Офиса ул. Максимовича Михаила (Трутенко Онуфрия) в Киеве / W-7354861 (Офис, ул. Максимовича Михаила (Трутенко Онуфрия)) 23 000 грн./месяц

    Аренда Офиса ул. Максимовича Михаила (Трутенко Онуфрия) в Киеве / W-7354861

  • Аренда Офиса ул. Максимовича Михаила (Трутенко Онуфрия) 3д в Киеве / W-7425885 (Офис, ул. Максимовича Михаила (Трутенко Онуфрия)) 21 000 грн./месяц

    Аренда Офиса ул. Максимовича Михаила (Трутенко Онуфрия) 3д в Киеве / W-7425885

  • Аренда Бизнес-центра ул. Васильковская 30д в Киеве / W-7011266 (Бизнес-центр, ул. Васильковская) 23 700 грн./месяц

    Аренда Бизнес-центра ул. Васильковская 30д в Киеве / W-7011266