Зарегистрироваться /

Аренда Офиса ул. Межигорская 87 в Киеве / W-7414907

Коммерческая недвижимость
Цена:
6 000 грн.
/месяц
$
143 $ (1$ = 41.85 грн.)
122 € (1€ = 48.9 грн.)
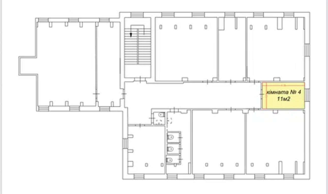
Поділ,вул Межигірська 87А, офіс 4 поверх,не житловий фонд,1 кабінет 11м гарний стан,кондіционер,метро Т Шевченко 3хв.6000грн у вартість входять усі комунальні послуги.(Комісія 50%)
Скачать .pdf

Посредник

Олександр

Обновлено: 16 Октября 2025
Код объекта: W-7414907
CAPTCHA CAPTCHA на основе изображений
Введите символы, изображенные на рисунке.

Пожаловаться на объявление

W-7414907 |

Укажите причину жалобы

Максимальное количество символов 500
CAPTCHA CAPTCHA на основе изображений
Введите символы, изображенные на рисунке.

Схожі оголошення