Зарегистрироваться /

Аренда Офиса ул. Константиновская 21 в Киеве / W-7413148

Коммерческая недвижимость
Цена:
40 000 грн.
/месяц
$
964 $ (1$ = 41.55 грн.)
820 € (1€ = 48.85 грн.)
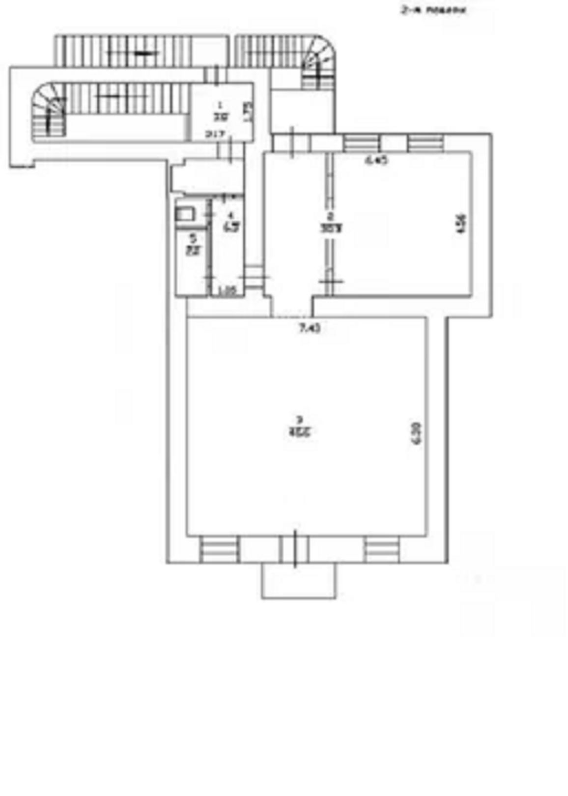
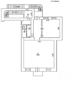
Контрактова пл метро,вул Костянтинівська 21, офіс 2 поверх,нежитловий фонд, окремий вхід з двору,109м добрий стан,кондіционірованіе, 2 кабінета (47м+31м) метро Контактова пл 2 хв.40000грн + комунальні.(Комісія 50%)
Скачать .pdf

Посредник

Олександр

Обновлено: 4 Октября 2025
Код объекта: W-7413148
CAPTCHA CAPTCHA на основе изображений
Введите символы, изображенные на рисунке.

Пожаловаться на объявление

W-7413148 |

Укажите причину жалобы

Максимальное количество символов 500
CAPTCHA CAPTCHA на основе изображений
Введите символы, изображенные на рисунке.

Схожі оголошення