Реєстрація /

Оренда Офіс Голосіївський пров. в Києві / W-7421858

Комерційна нерухомість
Ціна:
20 000 грн.
/місяць
$
474 $ (1$ = 42.17 грн.)
408 € (1€ = 48.9 грн.)
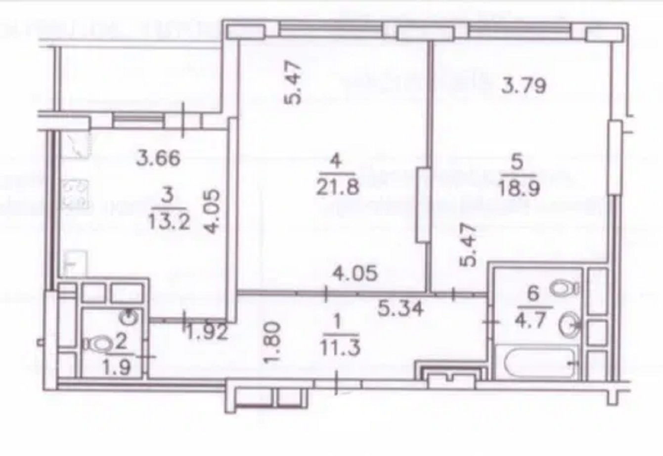
Голосіївський просп 30Б, офіс 6 поверх,житловий фонд, 74.2м, добрий стан,3 кабінета, міні кухня, метро Деміївська 2 хв.20000грн + комунальні.(Комісія 50%)
Завантажити .pdf

Посередник

Олександр

Оновлено: 12 Листопада 2025
Код об'єкта: W-7421858
CAPTCHA Фото Капча
Введіть символи, зображені на малюнку.

Поскаржитися на оголошення

W-7421858 |

Вкажіть причину скарги

Максимальна кількість символів 500
CAPTCHA Фото Капча
Введіть символи, зображені на малюнку.

Схожі оголошення