Зарегистрироваться /

Продажа квартиры ул. Речная 4 в новостройке в Киеве / W-7448568

3-комнатная квартира
Цена:
9 691 000* грн.
$
219 000 $ (1$ = 44.25 грн.)
187 000 € (1€ = 51.9 грн.)
Жилой комплекс:
Кол-во комнат/Расположение:
Площадь (общая/жилая/кухни):
117/65/26
Этаж/Этажность:
17/23
Тип (серия) дома:
Спецпроект 2021-2025 гг
Материал стен:
Монолит
Материал пола:
Стяжка
Материал перекрытий:
Железобетон
Количество, тип санузлов:
3, Разд.
Парковка:
да
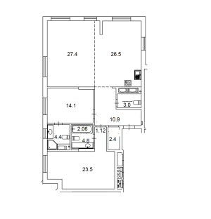
Продаж 3-к.квартири, 117кв.м. ЖК КАМЕРТОН, вул.Річкова (Річна), 4. Будинок бізнес рівня, розташований у Шевченківському районі, на перетині двох вулиць - Дмитрівська та Річкова, в тихому центрі міста. ЗАГАЛЬНА площа - 117кв.м. Н -3м Передпокій - 10.9кв.м. Комора -2.4кв.м. ЖИТЛОВА - 65кв.м. ТРИ окремі кімнати - 23.5кв.м., 14.1кв.м., 27.4кв.м. КУХНЯ - 26.5кв.м. Три санвузли - 4.8кв.м. + 4.4кв.м. + 3.0кв.м. Монол.-каркасний будинок, утеплений фасад. Затишний хол першого поверху з каміном, - висока стеля, та оздоблення з якісних матеріалів. Територія розділена на активну та тиху зону. Будинок має внутрішній сквер. Цілодобова охорона, система відеонагляду. З поверху на ліфті можна потрапити в паркінг, Розвинена інфраструктура. Поруч розташовані супермаркет, кафе, банки, дитячий садок, гімназія. Будинок введено в експлуатацію, можливість відразу зайти на ремонт квартири... ПРОПОЗИЦІЯ АКТУАЛЬНА. Перегляд по домовленості, телефонуйте у будь який час.
Скачать .pdf

Посредник

Tatyana

Обновлено: 28 Апреля 2026
Код объекта: W-7448568
CAPTCHA CAPTCHA на основе изображений
Введите символы, изображенные на рисунке.

Пожаловаться на объявление

W-7448568 |

Укажите причину жалобы

Максимальное количество символов 500
CAPTCHA CAPTCHA на основе изображений
Введите символы, изображенные на рисунке.

Схожі оголошення

  • Продажа квартиры Берестейский просп. (Победы просп) 42а в Киеве / B-109440 (Берестейский просп. (Победы просп), 42а) 10 420 000* грн.

    Продажа квартиры Берестейский просп. (Победы просп) 42а в Киеве / B-109440

  • Продажа квартиры ул. Михайловская 6а в Киеве / W-7437985 (ул. Михайловская, 6а) 9 514 000* грн.

    Продажа квартиры ул. Михайловская 6а в Киеве / W-7437985

  • Продажа квартиры ул. Стрелецкая 7/6 в Киеве / Q-30518 (ул. Стрелецкая, 7/6) 9 293 000* грн.

    Продажа квартиры ул. Стрелецкая 7/6 в Киеве / Q-30518

  • Продажа квартиры ул. Бульварно-Кудрявская (Воровского) 31а в Киеве / R-24756 (ул. Бульварно-Кудрявская (Воровского), 31а) 9 956 000* грн.

    Продажа квартиры ул. Бульварно-Кудрявская (Воровского) 31а в Киеве / R-24756

  • Продажа квартиры ул. Кудрявская 24а в Киеве / W-7392592 (ул. Кудрявская, 24а) 9 514 000* грн.

    Продажа квартиры ул. Кудрявская 24а в Киеве / W-7392592

  • Продажа квартиры ул. Вавиловых 11 в Киеве / R-59953 (ул. Вавиловых, 11) 9 383 000* грн.

    Продажа квартиры ул. Вавиловых 11 в Киеве / R-59953

  • Продажа квартиры Берестейский просп. (Победы просп) 42а в Киеве / A-115009 (Берестейский просп. (Победы просп), 42а) 10 040 000* грн.

    Продажа квартиры Берестейский просп. (Победы просп) 42а в Киеве / A-115009

  • Продажа квартиры ул. Михайловская 6 в Киеве / W-7441073 (ул. Михайловская, 6) 9 536 000* грн.

    Продажа квартиры ул. Михайловская 6 в Киеве / W-7441073

  • Продажа квартиры ул. Франко Ивана 16/2 в Киеве / Q-32673 (ул. Франко Ивана, 16/2) 10 400 000* грн.

    Продажа квартиры ул. Франко Ивана 16/2 в Киеве / Q-32673

  • Продажа квартиры ул. Конисского Александра (Тургеневская) 22а в Киеве / L-32186 (ул. Конисского Александра (Тургеневская), 22а) 9 735 000* грн.

    Продажа квартиры ул. Конисского Александра (Тургеневская) 22а в Киеве / L-32186

  • Продажа квартиры ул. Стрелецкая 7/6 в Киеве / W-7447709 (ул. Стрелецкая, 7/6) 9 293 000* грн.

    Продажа квартиры ул. Стрелецкая 7/6 в Киеве / W-7447709

  • Продажа квартиры ул. Пимоненко Николая 19 в Киеве / W-7447923 (ул. Пимоненко Николая, 19) 9 514 000* грн.

    Продажа квартиры ул. Пимоненко Николая 19 в Киеве / W-7447923