Зарегистрироваться /

Продажа квартиры ул. Бульварно-Кудрявская (Воровского) 21 в Киеве / W-7448444

3-комнатная квартира
Цена:
20 580 000* грн.
$
465 000 $ (1$ = 44.25 грн.)
396 000 € (1€ = 51.9 грн.)
Жилой комплекс:
Кол-во комнат/Расположение:
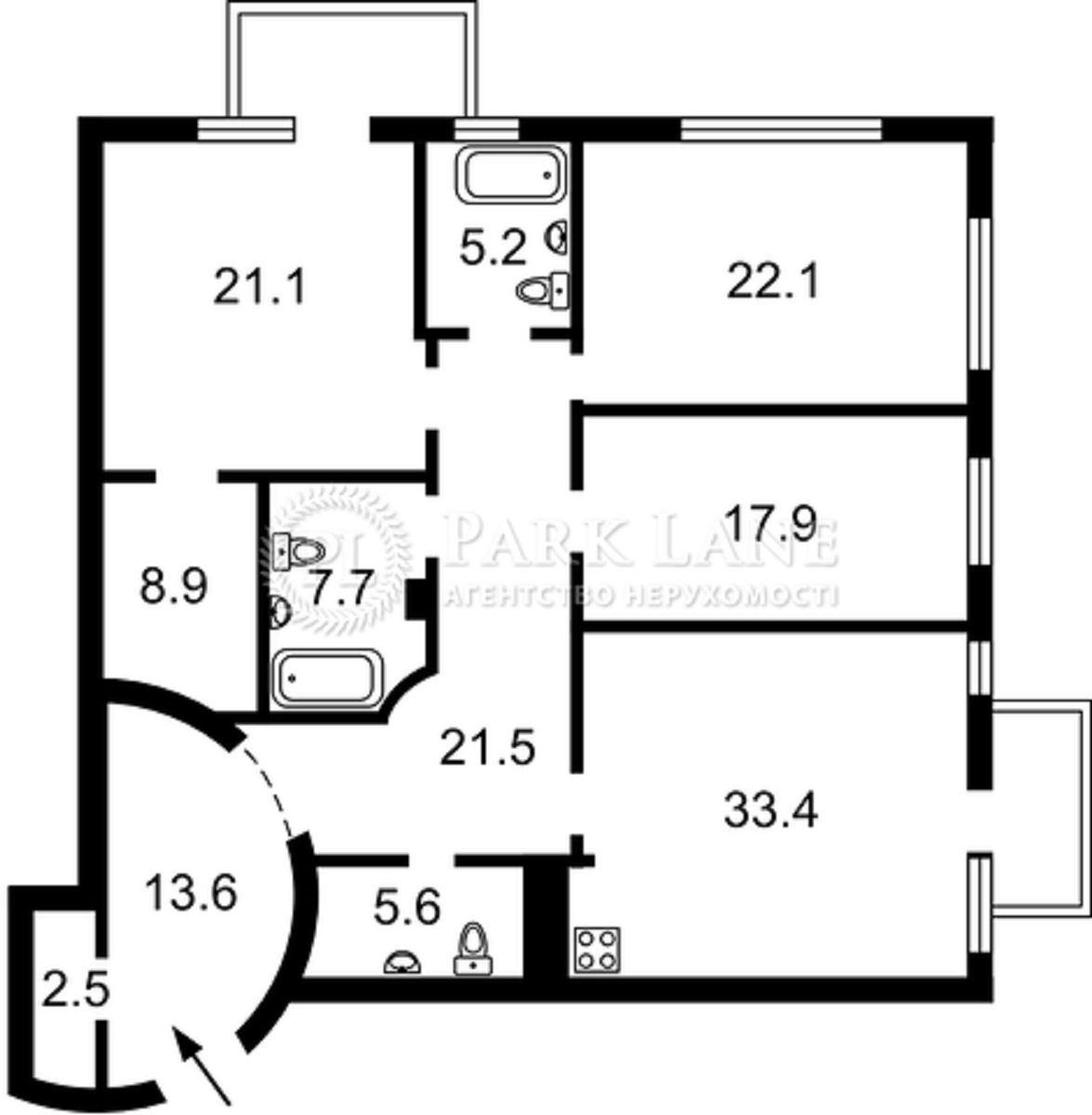
Площадь (общая/жилая/кухни):
161/61/33
Этаж/Этажность:
16/23
Тип (серия) дома:
спецпроект 2016-2020 гг.
Материал стен:
Кирпич
Материал пола:
Паркет
Количество санузлов:
3
Ремонт (состояние):
с евроремонтом
Бульварно-Кудрявська (Воровського), 21, Art Hall. Клубний будинок «Арт Холл». Квартира продається з усіма меблями (Італія) та побутовую технікою. Дизайнерський ремонт. На підлозі паркет, стіни - декоративна штукатурка. Н = 3 m. Панорамні вікна, радіатори конвектори інтегровані в підлогу. Підігрів підлоги в прихожій та в санвузлах. В будинку є генератор, підзмений паркінг. Є паркомісце за окрему плату. Квартира оснащена всім необхідним для комфортного мешкання, кондиціонери, фільтр на воду, автономний, резервний електрокотел, сигналізація. Клубний будинок "Art Hall" на 74 квартири в історичній частині Києва, монолітно-каркасний з вентильованим фасадом, в комплексі застосовані система "розумний дім", власна служба експлуатації, трирівневий підземний паркінг на 82 паркомісця, в пішій досяжності знаходяться іноземні представництва, відділення банків, БЦРенессанс», готель «City Park Hotel», магазини.
Скачать .pdf

Посредник

Kiriienko Oksana

Обновлено: 27 Апреля 2026
Код объекта: W-7448444
CAPTCHA CAPTCHA на основе изображений
Введите символы, изображенные на рисунке.

Пожаловаться на объявление

W-7448444 |

Укажите причину жалобы

Максимальное количество символов 500
CAPTCHA CAPTCHA на основе изображений
Введите символы, изображенные на рисунке.

Схожі оголошення

  • Продажа квартиры ул. Конисского Александра (Тургеневская) 28а-30а в Киеве / W-7141544 (ул. Конисского Александра (Тургеневская), 28а-30а) 20 800 000* грн.

    Продажа квартиры ул. Конисского Александра (Тургеневская) 28а-30а в Киеве / W-7141544

  • Продажа квартиры ул. Бульварно-Кудрявская (Воровского) в Киеве / W-7437592 (ул. Бульварно-Кудрявская (Воровского)) 21 020 000* грн.

    Продажа квартиры ул. Бульварно-Кудрявская (Воровского) в Киеве / W-7437592

  • Продажа квартиры ул. Ярославов Вал 21г в Киеве / P-33374 (ул. Ярославов Вал, 21г) 21 900 000* грн.

    Продажа квартиры ул. Ярославов Вал 21г в Киеве / P-33374

  • Продажа квартиры ул. Кудрявская 8а в Киеве / L-31361 (ул. Кудрявская, 8а) 21 680 000* грн.

    Продажа квартиры ул. Кудрявская 8а в Киеве / L-31361

  • Продажа квартиры ул. Дмитриевская 17а в Киеве / W-7437596 (ул. Дмитриевская, 17а) 19 250 000* грн.

    Продажа квартиры ул. Дмитриевская 17а в Киеве / W-7437596

  • Продажа квартиры Берестейский просп. (Победы просп) 26а в Киеве / W-7402546 (Берестейский просп. (Победы просп), 26а) 20 360 000* грн.

    Продажа квартиры Берестейский просп. (Победы просп) 26а в Киеве / W-7402546

  • Продажа квартиры ул. Бульварно-Кудрявская (Воровского) 15 в Киеве / Q-27035 (ул. Бульварно-Кудрявская (Воровского), 15) 21 280 000* грн.

    Продажа квартиры ул. Бульварно-Кудрявская (Воровского) 15 в Киеве / Q-27035

  • Продажа квартиры ул. Владимирская 79 в Киеве / L-31507 (ул. Владимирская, 79) 19 690 000* грн.

    Продажа квартиры ул. Владимирская 79 в Киеве / L-31507

  • Продажа квартиры ул. Малая Житомирская 5 в Киеве / I-37474 (ул. Малая Житомирская, 5) 20 360 000* грн.

    Продажа квартиры ул. Малая Житомирская 5 в Киеве / I-37474

  • Продажа квартиры ул. Крещатик 4 в Киеве / C-112971 (ул. Крещатик, 4) 18 590 000* грн.

    Продажа квартиры ул. Крещатик 4 в Киеве / C-112971

  • Продажа квартиры ул. Гончара Олеся 26 в Киеве / W-7437695 (ул. Гончара Олеся, 26) 22 130 000* грн.

    Продажа квартиры ул. Гончара Олеся 26 в Киеве / W-7437695

  • Продажа квартиры ул. Большая Житомирская 40 в Киеве / W-7393318 (ул. Большая Житомирская, 40) 18 810 000* грн.

    Продажа квартиры ул. Большая Житомирская 40 в Киеве / W-7393318