Зарегистрироваться /

Аренда Нежилого помещения ул. Саксаганского в Киеве / W-7448262

Коммерческая недвижимость
Цена:
60 000 грн.
/месяц
$
1 360 $ (1$ = 44.25 грн.)
1 160 € (1€ = 51.9 грн.)
Площадь:
50 м²
Цена за м²:
1 200 грн.
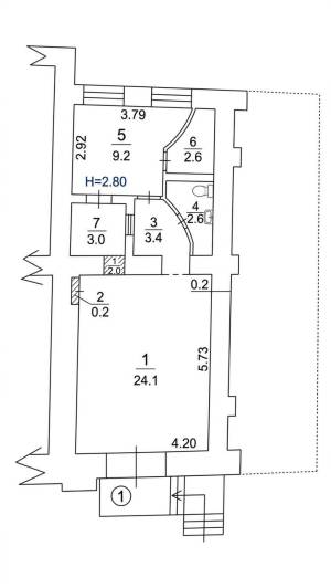
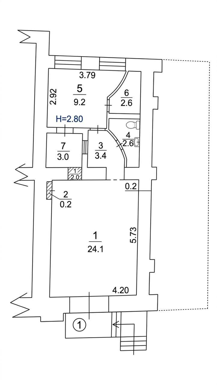
ТЕРМІНОВА ОРЕНДА ФАСАДНОГО ПРИМІЩЕННЯ В ЦЕНТРІ Київ, вул. Саксаганського, 24 Метро — Олімпійська станція метро Фасадне нежитлове приміщення з окремим входом — ліквідний формат для бізнесу в центрі міста Окремий вхід з фасаду Активна видимість з вулиці, постійний трафік Центр міста Площа: 50 м² Потужність: 33 кВт (17 + 16 кВт) Вода ️Бойлер ️ Без централізованого опалення Діючі орендарі працюють останній місяць — можливий заздалегідь підготовлений заїзд Історія приміщення: 7 років — відділення банку (касові зони) 15 років — магазин «Кондитерська Волконських» Межа Голосіївського та Шевченківського районів — діловий та пішохідний трафік ІДЕАЛЬНО ПІДХОДИТЬ ДЛЯ: - кав’ярні / пекарні / кондитерської - салону краси / барбершопу - магазину / шоуруму - фінансових послуг / обміну валют - пункту видачі / сервісу - виробництва та продажу заморожених напівфабрикатів (формат типу Галя Балувана)
Скачать .pdf

Посредник

Александр

Обновлено: 26 Апреля 2026
Код объекта: W-7448262
CAPTCHA CAPTCHA на основе изображений
Введите символы, изображенные на рисунке.

Пожаловаться на объявление

W-7448262 |

Укажите причину жалобы

Максимальное количество символов 500
CAPTCHA CAPTCHA на основе изображений
Введите символы, изображенные на рисунке.

Схожі оголошення

  • Аренда Нежилого помещения ул. Антоновича Владимира (Горького) в Киеве / C-104360 (Нежилое помещение, ул. Антоновича Владимира (Горького)) 62 100* грн./месяц

    Аренда Нежилого помещения ул. Антоновича Владимира (Горького) в Киеве / C-104360

  • Аренда Офиса ул. Большая Васильковская (Красноармейская) 72 в Киеве / W-7426449 (Офис, ул. Большая Васильковская (Красноармейская)) 59 700* грн./месяц

    Аренда Офиса ул. Большая Васильковская (Красноармейская) 72 в Киеве / W-7426449

  • Аренда Офиса ул. Васильковская 30д в Киеве / W-7030284 (Офис, ул. Васильковская) 58 800 грн./месяц

    Аренда Офиса ул. Васильковская 30д в Киеве / W-7030284

  • Аренда Нежилого помещения Стратегическое шоссе в Киеве / W-7447770 (Нежилое помещение, Стратегическое шоссе) 64 200* грн./месяц

    Аренда Нежилого помещения Стратегическое шоссе в Киеве / W-7447770

  • Аренда Офиса ул. Голосеевская в Киеве / P-33527 (Офис, ул. Голосеевская) 62 000 грн./месяц

    Аренда Офиса ул. Голосеевская в Киеве / P-33527

  • Аренда Нежилого помещения ул. Антоновича Владимира (Горького) в Киеве / H-41571 (Нежилое помещение, ул. Антоновича Владимира (Горького)) 64 600* грн./месяц

    Аренда Нежилого помещения ул. Антоновича Владимира (Горького) в Киеве / H-41571

  • Аренда Нежилого помещения ул. Антоновича Владимира (Горького) в Киеве / L-29764 (Нежилое помещение, ул. Антоновича Владимира (Горького)) 62 000* грн./месяц

    Аренда Нежилого помещения ул. Антоновича Владимира (Горького) в Киеве / L-29764

  • Аренда Нежилого помещения ул. Малевича Казимира (Боженко) в Киеве / P-33436 (Нежилое помещение, ул. Малевича Казимира (Боженко)) 60 000 грн./месяц

    Аренда Нежилого помещения ул. Малевича Казимира (Боженко) в Киеве / P-33436

  • Аренда Нежилого помещения ул. Антоновича Владимира (Горького) в Киеве / P-32616 (Нежилое помещение, ул. Антоновича Владимира (Горького)) 62 000 грн./месяц

    Аренда Нежилого помещения ул. Антоновича Владимира (Горького) в Киеве / P-32616

  • Аренда Офиса ул. Жилянская 72 в Киеве / W-7441554 (Офис, ул. Жилянская) 54 900* грн./месяц

    Аренда Офиса ул. Жилянская 72 в Киеве / W-7441554

  • Аренда Бизнес-центра ул. Малевича Казимира (Боженко) 86п в Киеве / W-7376128 (Бизнес-центр, ул. Малевича Казимира (Боженко)) 57 600 грн./месяц

    Аренда Бизнес-центра ул. Малевича Казимира (Боженко) 86п в Киеве / W-7376128

  • Аренда Офиса ул. Жилянская в Киеве / P-32591 (Офис, ул. Жилянская) 57 500* грн./месяц

    Аренда Офиса ул. Жилянская в Киеве / P-32591