Зарегистрироваться /

Аренда Офиса ул. Глубочицкая 40 в Киеве / W-7448258

Коммерческая недвижимость
Цена:
34 500 грн.
/месяц
$
779 $ (1$ = 44.25 грн.)
665 € (1€ = 51.9 грн.)
Кол-во комнат:
4
Профиль:
Площадь:
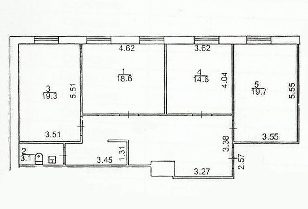
101 м²
Тип (серия) дома:
спецпроект 2011-2015 гг.
Этаж/Этажность:
5/5
Цена за м²:
341 грн.
Ремонт (состояние):
с евроремонтом
Парковка:
да
Офіс розташований на 5-му поверсі 5-поверхової будівлі, розташованої за 10 хвилин пішки до м. Контрактова площа. Навпроти БЦ — зупинка громадського транспорту. В офісі 4 великі кімнати (у кожній кондиціонер), один великий open space, санвузол, додатково виведена мокра точка під кухню. ДОСТУП 24/7. Дуже світлий офіс, що дозволяє використовувати його під будь-який вид діяльності. У будівлі цілодобова охорона. відеоспостереження, ліфт, презентабельна вхідна група та прилегла територія, розвинена інфраструктура. В офісі встановлено ЛІЧІЛЬНИК на опалення! Бізнес-центр має власну котельню. Додатково оплачуються комунальні послуги за лічильниками + експлуатаційні послуги. Є можливість поділу офісу на кімнати. Вартість кімнати — 10000 грн, вартість усього офісу — 34500 грн. Власник — ФОП 2 група. Офіс вільний з 1 червня 2026 року, перегляди можливі за домовленістю. Без комісії! Можливі індивідуальні знижки.
Скачать .pdf

Владелец

Юлия

Обновлено: 26 Апреля 2026
Код объекта: W-7448258
CAPTCHA CAPTCHA на основе изображений
Введите символы, изображенные на рисунке.

Пожаловаться на объявление

W-7448258 |

Укажите причину жалобы

Максимальное количество символов 500
CAPTCHA CAPTCHA на основе изображений
Введите символы, изображенные на рисунке.

Схожі оголошення

  • Аренда Офиса ул. Дмитриевская в Киеве / N-21908 (Офис, ул. Дмитриевская) 35 900* грн./месяц

    Аренда Офиса ул. Дмитриевская в Киеве / N-21908

  • Аренда Офиса ул. Щербаковского Даниила (Щербакова) в Киеве / A-114243 (Офис, ул. Щербаковского Даниила (Щербакова)) 35 000 грн./месяц

    Аренда Офиса ул. Щербаковского Даниила (Щербакова) в Киеве / A-114243

  • Аренда Офиса ул. Щербаковского Даниила (Щербакова) в Киеве / A-113016 (Офис, ул. Щербаковского Даниила (Щербакова)) 35 000 грн./месяц

    Аренда Офиса ул. Щербаковского Даниила (Щербакова) в Киеве / A-113016

  • Аренда Офиса Вознесенский спуск (Смирнова-Ласточкина) 23 в Киеве / W-7444585 (Офис, Вознесенский спуск (Смирнова-Ласточкина)) 35 000 грн./месяц

    Аренда Офиса Вознесенский спуск (Смирнова-Ласточкина) 23 в Киеве / W-7444585