Зарегистрироваться /

Продажа квартиры ул. Златоустовская 25 в новостройке в Киеве / W-7448146

2-комнатная квартира
Цена:
7 761 000* грн.
$
175 000 $ (1$ = 44.35 грн.)
150 000 € (1€ = 51.7 грн.)
Жилой комплекс:
Кол-во комнат/Расположение:
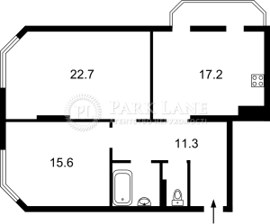
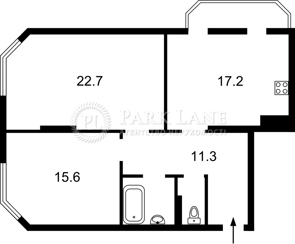
Площадь (общая/жилая/кухни):
77/39/17
Этаж/Этажность:
3/19
Тип (серия) дома:
Спецпроект 2021-2025 гг
Материал стен:
Монолит
Материал пола:
Стяжка
Материал перекрытий:
Железобетон
Тип санузла:
Разд.
Парковка:
да
балкон
Функціональне планування, яке дозволить втілити грамотні дизайнерські рішення для комфортного проживання. Стан після будівельників. Два просторих балкона. Вид на Унiвермаг Украiна. Ідеальна локація - поряд у пішій доступності, школи та дитячі садки. Павлівський Парк, сквер Чкалова, сквер Гончара, затишні вулички, близькість до старого Центру, у локації близько 20 посольств та відомств іноземних європейських держав, бізнес-центри, ресторанчики.
Скачать .pdf

Посредник

Обновлено: 24 Апреля 2026
Код объекта: W-7448146
CAPTCHA CAPTCHA на основе изображений
Введите символы, изображенные на рисунке.

Пожаловаться на объявление

W-7448146 |

Укажите причину жалобы

Максимальное количество символов 500
CAPTCHA CAPTCHA на основе изображений
Введите символы, изображенные на рисунке.

Схожі оголошення

  • Продажа квартиры ул. Пимоненко Николая 19 в новостройке в Киеве / W-7350765 (ул. Пимоненко Николая, 19) 7 495 000* грн.

    Продажа квартиры ул. Пимоненко Николая 19 в новостройке в Киеве / W-7350765

  • Продажа квартиры ул. Чикаленко Евгения (Пушкинская) 2-4/7 в Киеве / W-7449312 (ул. Чикаленко Евгения (Пушкинская), 2-4/7) 8 427 000* грн.

    Продажа квартиры ул. Чикаленко Евгения (Пушкинская) 2-4/7 в Киеве / W-7449312

  • Продажа квартиры Берестейский просп. (Победы просп) 11 корпус 3 в Киеве / R-55765 (Берестейский просп. (Победы просп), 11 корпус 3) 7 761 000* грн.

    Продажа квартиры Берестейский просп. (Победы просп) 11 корпус 3 в Киеве / R-55765

  • Продажа квартиры Берестейский просп. (Победы просп) 42 в новостройке в Киеве / W-7439476 (Берестейский просп. (Победы просп), 42) 7 096 000* грн.

    Продажа квартиры Берестейский просп. (Победы просп) 42 в новостройке в Киеве / W-7439476

  • Продажа квартиры ул. Нагорная 16 в Киеве / W-7429293 (ул. Нагорная, 16) 8 116 000* грн.

    Продажа квартиры ул. Нагорная 16 в Киеве / W-7429293

  • Продажа квартиры ул. Жилянская 118 в Киеве / H-50748 (ул. Жилянская, 118) 8 427 000* грн.

    Продажа квартиры ул. Жилянская 118 в Киеве / H-50748

  • Продажа квартиры ул. Черновола Вячеслава 25 в Киеве / W-7423999 (ул. Черновола Вячеслава, 25) 7 517 000* грн.

    Продажа квартиры ул. Черновола Вячеслава 25 в Киеве / W-7423999

  • Продажа квартиры ул. Багговутовская 25 в Киеве / W-7420613 (ул. Багговутовская, 25) 7 096 000* грн.

    Продажа квартиры ул. Багговутовская 25 в Киеве / W-7420613

  • Продажа квартиры ул. Златоустовская 25 в Киеве / B-108963 (ул. Златоустовская, 25) 7 761 000* грн.

    Продажа квартиры ул. Златоустовская 25 в Киеве / B-108963

  • Продажа квартиры Берестейский просп. (Победы просп) 11 корпус 3 в Киеве / Q-27692 (Берестейский просп. (Победы просп), 11 корпус 3) 7 983 000* грн.

    Продажа квартиры Берестейский просп. (Победы просп) 11 корпус 3 в Киеве / Q-27692

  • Продажа квартиры ул. Пимоненко Николая 19 в Киеве / W-7284348 (ул. Пимоненко Николая, 19) 7 761 000* грн.

    Продажа квартиры ул. Пимоненко Николая 19 в Киеве / W-7284348

  • Продажа квартиры Берестейский просп. (Победы просп) 42 в Киеве / W-7446580 (Берестейский просп. (Победы просп), 42) 8 471 000* грн.

    Продажа квартиры Берестейский просп. (Победы просп) 42 в Киеве / W-7446580