Зарегистрироваться /

Аренда Офиса ул. Гетьмана Вадима (Индустриальная) 6 в Киеве / W-7447842

Коммерческая недвижимость
Цена:
1 369 000* грн.
/месяц
$
31 000 $ (1$ = 44.15 грн.)
26 400 € (1€ = 51.9 грн.)
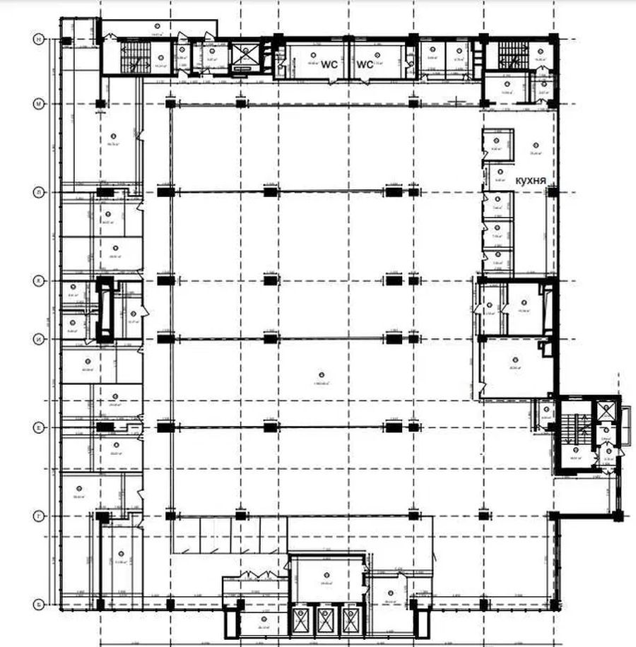
Возможно подключение к Автономному энергообеспечению (за счет арендатора). Бизнес центр Соsmo, на базе торгово-развлекательного комплекса Соsmo multimoll, предлагает офисные помещения с ремонтом Лофт и развитой инфраструктурой. Адрес: В. Гетьмана, 6, до М. Шулявка, 7 минут пеше. Арендаторы могут пользоваться большим паркингом, ресторанами, кафе. В здании имеется комплекс из самых больших конференц залов в Киеве, а также отель, для размещения гостей и партнеров. Предлагаем офисное помещение, которое размещено на 6 этаже и занимает 2500 кв.м., с учетом коридорного коеф-та. Открытая планировка с оборудованными рабочими зонами, комнаты переговоров, отдельные кабинеты, зона рецепции, просторная оборудованная кухня, 2 больших сан. узла, гардеробная. Арендная ставка - 6 долл/кв.метр + НДС Орех - 6 долл/кв.метр + НДС Коммунальные оплачиваются отдельно.
Скачать .pdf

Посредник

Юрій

Обновлено: 23 Апреля 2026
Код объекта: W-7447842
CAPTCHA CAPTCHA на основе изображений
Введите символы, изображенные на рисунке.

Пожаловаться на объявление

W-7447842 |

Укажите причину жалобы

Максимальное количество символов 500
CAPTCHA CAPTCHA на основе изображений
Введите символы, изображенные на рисунке.

Схожі оголошення