Зарегистрироваться /

Аренда Офиса ул. Лейпцигская 15 в Киеве / W-7447478

Коммерческая недвижимость
Цена:
1 235 000* грн.
/месяц
$
27 800 $ (1$ = 44.45 грн.)
23 500 € (1€ = 52.45 грн.)
Профиль:
Площадь:
1111 м²
Цена за м²:
1 110 грн.
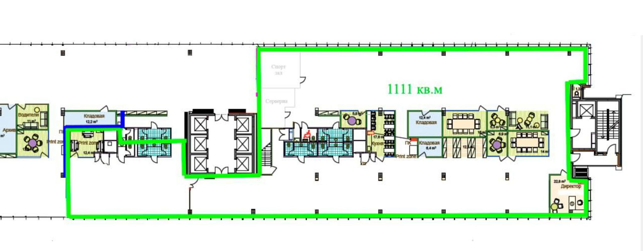
Оренда офісу в БЦ MERX II черга (клас А) на Лейпцизькій, 15 Площа: 1111 кв.м (4й поверх). Готовий офіс з меблями Особливості: Альтернативні джерела енергії (теплові насоси) Центральна вентиляція з рекуперацією тепла («AL-KO», Німеччина) Система кондиціонування VRV («LG») Газова котельня з конденсаційними котлами та внутрішньопідлоговими конвекторами («Mühlenhoff», Німеччина) Ліфти SIGMA (час очікування 20 секунд) Диспетчеризація будівлі Власний генератор 500 кВт Є укриття (критий паркінг) Пожежна сигналізація, спринклерна система пожежогасіння, система димовидалення Оренда: 25 $/м² з ПДВ та OPEX. Комунальні платежі - по факту споживання. 27 775дол
Скачать .pdf

Посредник

Юрій

Обновлено: 21 Апреля 2026
Код объекта: W-7447478
CAPTCHA CAPTCHA на основе изображений
Введите символы, изображенные на рисунке.

Пожаловаться на объявление

W-7447478 |

Укажите причину жалобы

Максимальное количество символов 500
CAPTCHA CAPTCHA на основе изображений
Введите символы, изображенные на рисунке.

Схожі оголошення