Зарегистрироваться /

Аренда Офиса ул. Василенко Николая 7 в Киеве / W-7447434

Коммерческая недвижимость
Цена:
742 000* грн.
/месяц
$
16 700 $ (1$ = 44.45 грн.)
14 200 € (1€ = 52.45 грн.)
Профиль:
Площадь:
1100 м²
Цена за м²:
674 грн.
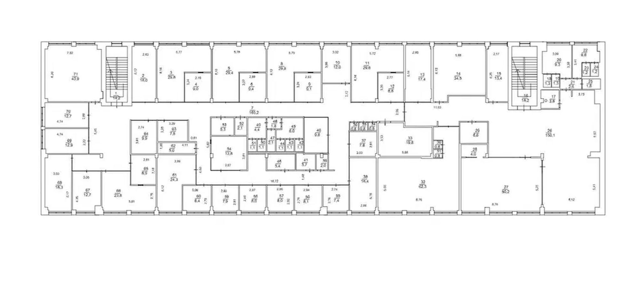
Миколи Василенка 7, метро Берестейська Офіс 1111м.кв. на 3 поверсі в бц З відмінним ремонтом, меблями, технікою та комунікаціями Є система вентиляції 16665 дол+к.п. (довгостроково) Оренда преміального офісу 1100 м² з повним оснащенням, вул. Миколи Василенка, Шулявка, Солом’янський район. Сучасний бізнес-простір “під ключ” — дизайнерський ремонт, повне меблювання, техніка, атмосфера комфорту та продуктивності для вашої команди. Локація: м. Київ, Шулявка, вул. Миколи Василенка Поруч: БЦ "Геліос", БЦ "Інком", БЦ "Форум Вікторія Парк", БЦ "Vector" Метро "Шулявська" — 10 хв пішки Планування і зони: - 25 окремих кабінетів - 5 переговорних кімнат - 5 скайп-румів для відеодзвінків - Конференц-зала на 50+ осіб - Професійна студія для запису контенту - Гейм-зона з тенісним столом та PlayStation 4 Pro - Лаунж з баром - Простора кухня та їдальня - 4 санвузли, душ, sleeping room - 2 окремих входи парковка та бомбосховище поруч
Скачать .pdf

Посредник

Юрій

Обновлено: 21 Апреля 2026
Код объекта: W-7447434
CAPTCHA CAPTCHA на основе изображений
Введите символы, изображенные на рисунке.

Пожаловаться на объявление

W-7447434 |

Укажите причину жалобы

Максимальное количество символов 500
CAPTCHA CAPTCHA на основе изображений
Введите символы, изображенные на рисунке.

Схожі оголошення