Зарегистрироваться /

Аренда Офиса ул. Срибнокильская 2а в Киеве / W-7447323

Коммерческая недвижимость
Цена:
43 800 грн.
/месяц
$
989 $ (1$ = 44.25 грн.)
840 € (1€ = 52.15 грн.)
Жилой комплекс:
Профиль:
Площадь:
200 м²
Цена за м²:
219 грн.
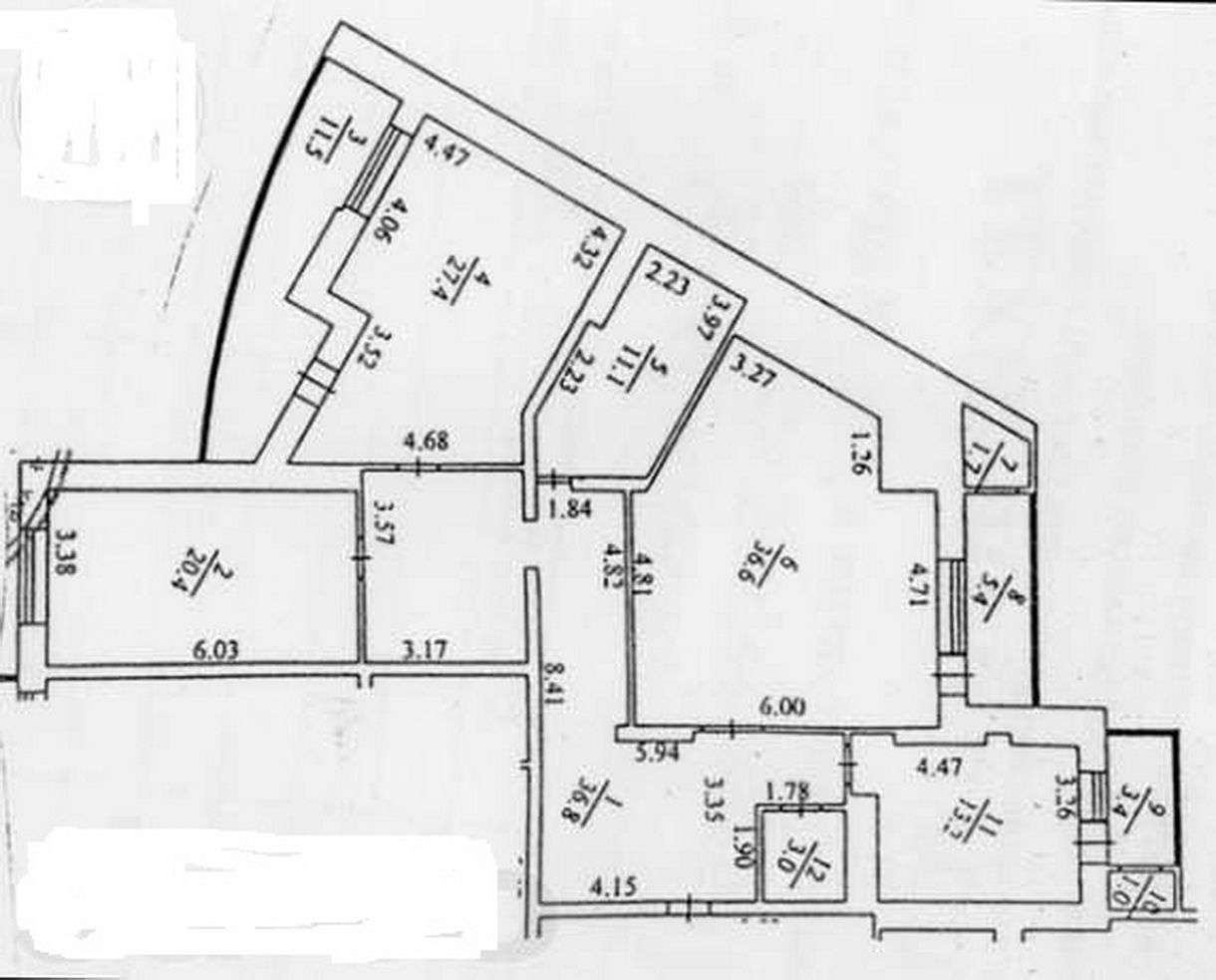
ул. Срибнокильская, 2а, жилой фонд, но более 8 лет-сдавался под садик, можно под офис открытого типа, 2этаж, фасадный дом, 5минут пешком до метро Позняки. Сдается в аренду офисное помещение площадью 200 кв.м. В офисе опен-спейс, ресепшн, кабинеты, 2 с/у, кладовые, серверная, кухня, офисный ремонт. ЕСТЬ ВОЗМОЖНОСТЬ ПОДКЛЮЧЕНИЯ ГЕНЕРАТОРА! Отличная инфраструктура. 1000дол.Без комиссии
Скачать .pdf

Владелец

Илья

Обновлено: 21 Апреля 2026
Код объекта: W-7447323
CAPTCHA CAPTCHA на основе изображений
Введите символы, изображенные на рисунке.

Пожаловаться на объявление

W-7447323 |

Укажите причину жалобы

Максимальное количество символов 500
CAPTCHA CAPTCHA на основе изображений
Введите символы, изображенные на рисунке.

Схожі оголошення