Зарегистрироваться /

Аренда Офиса ул. Гетьмана Вадима (Индустриальная) 6 в Киеве / W-7446856

Коммерческая недвижимость
Цена:
1 116 000* грн.
/месяц
$
25 200 $ (1$ = 44.3 грн.)
21 300 € (1€ = 52.5 грн.)
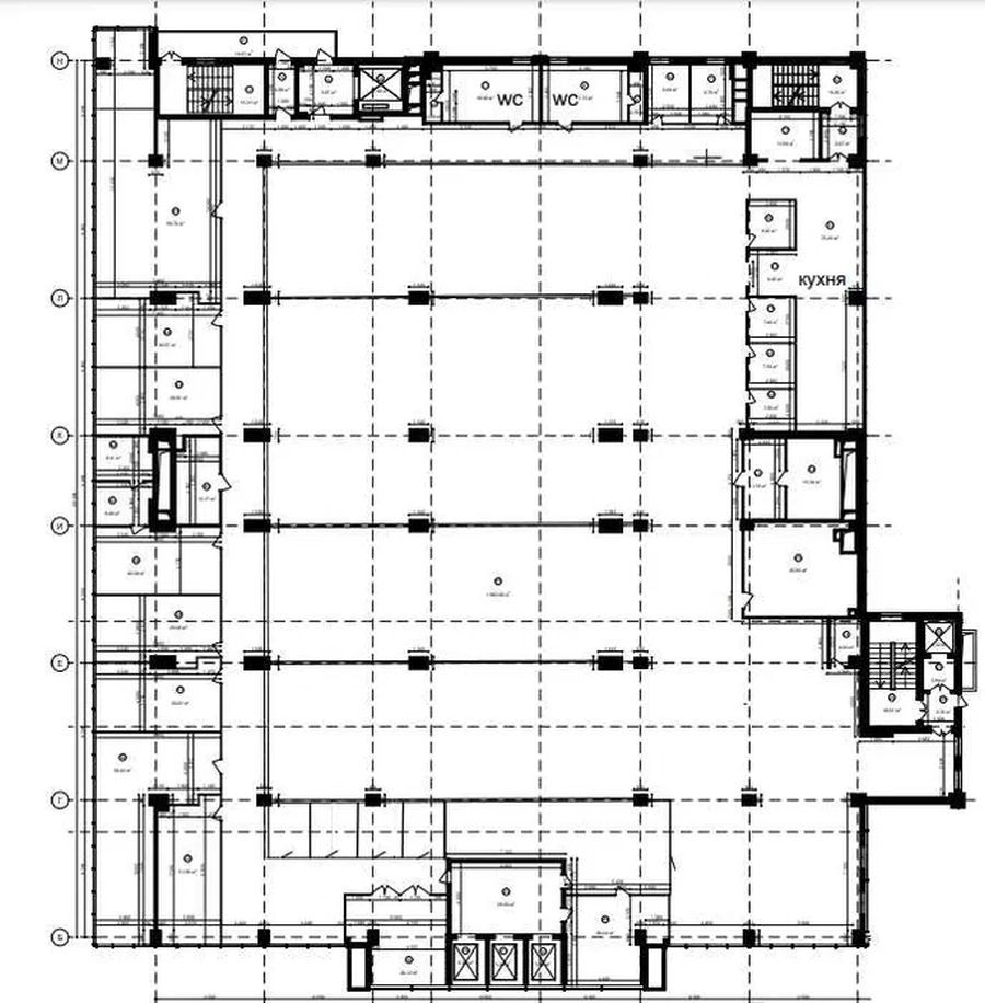
При отключении подачи централизованного электричества, есть возможность подключить дизельный генератор, который обеспечит комфортную, бесперебойную работу офиса !!! Бизнес центр Соsmo, на базе торгово-развлекательного комплекса Соsmo multimoll, предлагает офисные помещения с ремонтом Лофт и развитой инфраструктурой. Адрес: В. Гетьмана, 6, до М. Шулявка, 7 минут пеше. Арендаторы могут пользоваться большим паркингом, ресторанами, кафе. В здании имеется комплекс из самых больших конференц залов в Киеве, а также отель, для размещения гостей и партнеров. Предлагаем офисное помещение, которое размещено на 7 этаже и занимает 2100 кв.м. Открытая планировка с оборудованными рабочими зонами, комнаты переговоров, отдельные кабинеты, зона рецепции, просторная оборудованная кухня, 2 больших сан. узла, гардеробная. Арендная ставка - 6 долл/кв.метр + НДС Орех - 6 долл/кв.метр + НДС Коммунальные оплачиваются отдельно.
Скачать .pdf

Посредник

Юрій

Обновлено: 18 Апреля 2026
Код объекта: W-7446856
CAPTCHA CAPTCHA на основе изображений
Введите символы, изображенные на рисунке.

Пожаловаться на объявление

W-7446856 |

Укажите причину жалобы

Максимальное количество символов 500
CAPTCHA CAPTCHA на основе изображений
Введите символы, изображенные на рисунке.

Схожі оголошення