Зарегистрироваться /

Аренда Офиса ул. Гетьмана Вадима (Индустриальная) 6 в Киеве / W-7446855

Коммерческая недвижимость
Цена:
2 082 000* грн.
/месяц
$
47 000 $ (1$ = 44.3 грн.)
39 700 € (1€ = 52.5 грн.)
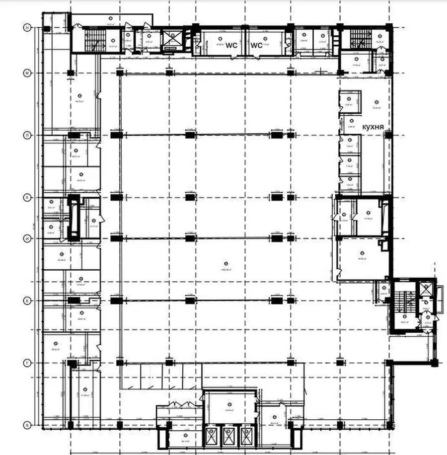
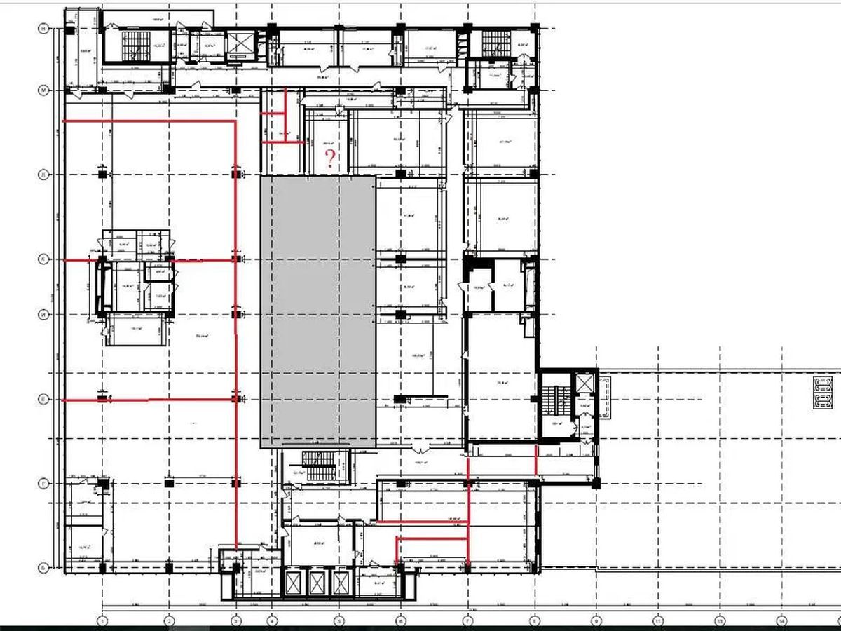
Автономное энергообеспечение!!! При отключении подачи централизованного электричества, автоматически включается дизельный генератор, который обеспечивает комфортную, бесперебойную работу офиса !!! Бизнес центр Соsmo Multimoll , на базе торгово-развлекательного комплекса Соsmo multimoll, предлагает офисные помещения с ремонтом Лофт и развитой инфраструктурой. Адрес: В. Гетьмана, 6, до метро Шулявская, 7 минут пеше. Арендаторы могут пользоваться большим паркингом, ресторанами, кафе. В здании имеется комплекс из самых больших конференц залов в Киеве, а также отель, для размещения гостей и партнеров. Предлагаем офисное помещение, которое размещено на 6 и 7 этажах и занимает 4700 кв.м. Открытая планировка с комнатами переговоров, отдельные кабинеты, зона рецепции, просторная оборудованная кухня, 2 больших сан. узла, гардеробная, на каждом этаже. Арендная ставка - 4 долл/кв.метр + НДС Орех - 6 долл/кв.метр + НДС Коммунальные оплачиваются отдельно.
Скачать .pdf

Посредник

Юрій

Обновлено: 18 Апреля 2026
Код объекта: W-7446855
CAPTCHA CAPTCHA на основе изображений
Введите символы, изображенные на рисунке.

Пожаловаться на объявление

W-7446855 |

Укажите причину жалобы

Максимальное количество символов 500
CAPTCHA CAPTCHA на основе изображений
Введите символы, изображенные на рисунке.

Схожі оголошення