Зарегистрироваться /

Аренда Офиса Железнодорожное шоссе 2 в Киеве / W-7446744

Коммерческая недвижимость
Цена:
132 000 грн.
/месяц
$
3 000 $ (1$ = 44.05 грн.)
2 540 € (1€ = 51.95 грн.)
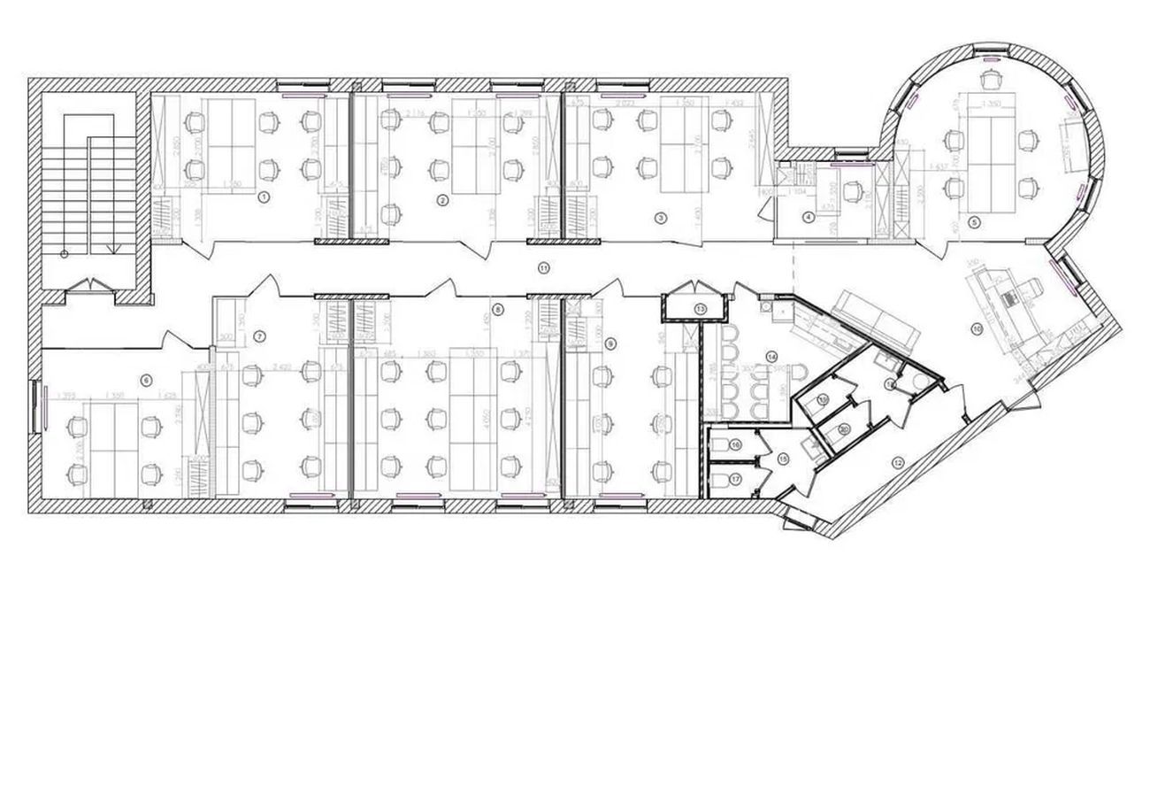
Печерський район. Залізничне Шосе 2-А, БЦ "Либідський". -5-й поверх, офіс 294 кв.м., автономний блок на поверсі, 8 кабінетів, мінікухня, 4 санвузли, зона ресепшн, кімната перемовин. -ремонт в стилі "LOFT". Усі сучасні комунікації: серверна, високошвидкісний інтернет, сигналізація, чіп-доступ. -Обладнано системою центрального та локального кондиціювання, система приточно-витяжної вентиляції з функцією обігріва/охолодження. -Усі розведення коммунікацій під 16-45 робочих місць. -Автономне живлення під час відключень світла+можливість встановлення додаткового генератора. -Система контролю доступу з відеоспостереженням, ліфт на поверх. У бізнес-центрі цілодобова охорона, відеоспостереження, великий паркінг на 90 авто. до м. Либідська 10-15 хвилин пішки. 132300грн -Ціна: 450 грн/кв.м. та комісія агенству 50%
Скачать .pdf

Посредник

Юрій

Обновлено: 17 Апреля 2026
Код объекта: W-7446744
CAPTCHA CAPTCHA на основе изображений
Введите символы, изображенные на рисунке.

Пожаловаться на объявление

W-7446744 |

Укажите причину жалобы

Максимальное количество символов 500
CAPTCHA CAPTCHA на основе изображений
Введите символы, изображенные на рисунке.

Схожі оголошення