Зарегистрироваться /

Аренда Магазина ул. Большая Васильковская (Красноармейская) 33 в Киеве / W-7446730

Коммерческая недвижимость
Цена:
301 000* грн.
/месяц
$
6 840 $ (1$ = 44.05 грн.)
5 800 € (1€ = 51.95 грн.)
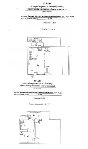
нежитлове приміщення Локація: центр, вул. Велика Васильківська 33 Площа: 228 кв.м Поверх/поверховість: 1/7 Планування: змішаного типу Стан: з ремонтом(після орендаря) Комунікації: електрика (120 кВт), водопостачання/водовідведення, опалення. Додаткові характеристики: приміщення в двох поверхах, перший поверх 114 кв.м, підвал - 113 кв.м Умови оренди: $ 30/кв.м +комун.послуги 6840дол
Скачать .pdf

Посредник

Юрій

Обновлено: 17 Апреля 2026
Код объекта: W-7446730
CAPTCHA CAPTCHA на основе изображений
Введите символы, изображенные на рисунке.

Пожаловаться на объявление

W-7446730 |

Укажите причину жалобы

Максимальное количество символов 500
CAPTCHA CAPTCHA на основе изображений
Введите символы, изображенные на рисунке.

Схожі оголошення