Зарегистрироваться /

Аренда Офиса ул. Лейпцигская 15 в Киеве / W-7446619

Коммерческая недвижимость
Цена:
494 000* грн.
/месяц
$
11 300 $ (1$ = 43.85 грн.)
9 530 € (1€ = 51.85 грн.)
Профиль:
Площадь:
500 м²
Цена за м²:
988 грн.
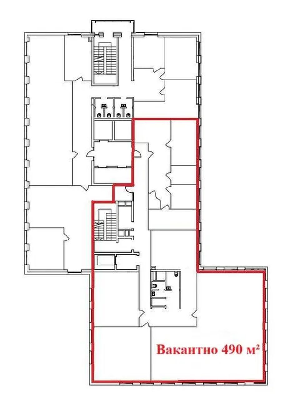
Оренда офісу в БЦ MERX III черга (клас А) на Лейпцизькій, 15. Площа: 490 кв.м (3й поверх). Особливості: Альтернативні джерела енергії (теплові насоси) Центральна вентиляція з рекуперацією тепла («AL-KO», Німеччина) Система кондиціонування VRV («LG») Газова котельня з конденсаційними котлами та внутрішньопідлоговими конвекторами («Mühlenhoff», Німеччина) Ліфти SIGMA (час очікування 20 секунд) Диспетчеризація будівлі Пожежна сигналізація, спринклерна система пожежогасіння, система димовидалення Пішохідна доступність: 15 хвилин до м. "Арсенальна" 10 хвилин до м. "Печерська". Оренда: 23 у.о./кв.м з ПДВ та OPEX. Комунальні платежі - по факту споживання.
Скачать .pdf

Посредник

Юрій

Обновлено: 16 Апреля 2026
Код объекта: W-7446619
CAPTCHA CAPTCHA на основе изображений
Введите символы, изображенные на рисунке.

Пожаловаться на объявление

W-7446619 |

Укажите причину жалобы

Максимальное количество символов 500
CAPTCHA CAPTCHA на основе изображений
Введите символы, изображенные на рисунке.

Схожі оголошення