Зарегистрироваться /

Аренда Офиса ул. Дегтяревская 27 в Киеве / W-7445678

Коммерческая недвижимость
Цена:
481 000* грн.
/месяц
$
11 000 $ (1$ = 43.7 грн.)
9 390 € (1€ = 51.2 грн.)
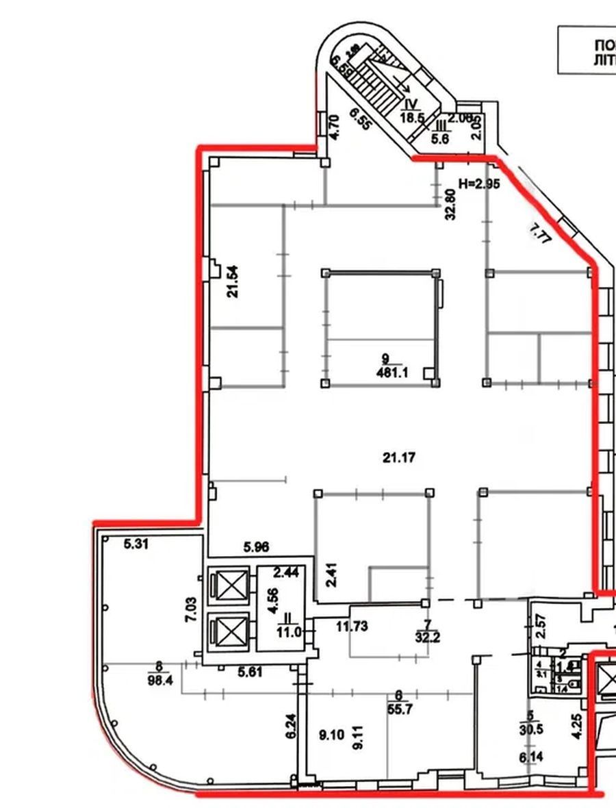
Бізнес-центр Mikom Palace (Міком Палац) - сучасний офісний центр в Шевченківському районі м. Києва, де пропонується оренда офісу на 4 поверсі з ремонтом в стані "після поперднього орендаря". В приміщенні власна кухня та 2 санвузла. У числі орендарів БЦ Mikom Palace провідні українські та міжнародні компанії фармацевтичної, фінансової, інвестиційної та інших галузей діяльності. Бізнес-центр відрізняється фасадним розташуванням, презентабельною вхідною групою, високою стелею, з двома входами в будівлю, наявністю великого паркінгу. Найближчі ст.м. Лук'янівська, Дорогожичі і ст.м. Шулявська розташовані в пішохідній доступності до бізнес-центру. 4 поверх - 1000 кв.м. корисної площі. (меблі відсутні); Коефіцієнт загальних площ: 11% Орендна ставка - 8 дол. з ПДВ за 1 кв.м.; Експлуатаційні витрати: 3 дол. з ПДВ за 1 кв.м. Комунальні витрати: по факту Наявні паркомісця - 15 11000дол
Скачать .pdf

Посредник

Юрій

Обновлено: 10 Апреля 2026
Код объекта: W-7445678
CAPTCHA CAPTCHA на основе изображений
Введите символы, изображенные на рисунке.

Пожаловаться на объявление

W-7445678 |

Укажите причину жалобы

Максимальное количество символов 500
CAPTCHA CAPTCHA на основе изображений
Введите символы, изображенные на рисунке.

Схожі оголошення