Зарегистрироваться /

Аренда Офиса ул. Липкивского Василия (Урицкого) 14 в Киеве / W-7444899

Коммерческая недвижимость
Цена:
310 000* грн.
/месяц
$
7 000 $ (1$ = 44.25 грн.)
5 970 € (1€ = 51.9 грн.)
Профиль:
Площадь:
250 м²
Цена за м²:
1 240 грн.
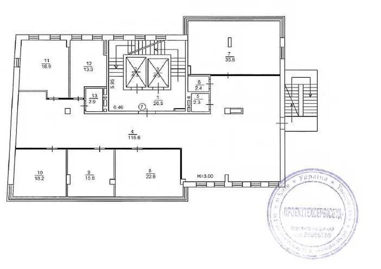
Здається в оренду офісне приміщення, вул. Митрополита Василя Липківського,14, Солом’янський р-н, в пішій ході станція метро Вокзальна, зручна транспортна розв'язка. Офіс розташований на 3-му поверсі (фантастичний краєвид на місто), загальна площа – 248 м2, висота стелі – 2,80 м. Приміщення вже готове до здачі в оренду. Планування: - 6 окремих кабінетів; - опенспейс робочі зони (гнучко змінюються) 116 м2; - зона кухні; -зона рецепції; - 3 санвузла; - серверна; Технічне оснащення: - автономне опалення (електро), вода і каналізація; - світло 24/7 (є генератор на випадок надзвичайної ситуації, яка забезпечує роботу ліфтів, подачу води і опалення та повне функціонування всього офісного приміщення); - кондиціонери; - система вентиляції; - кабінети оснащені системою контролю доступу; -всі кабінети мебльовані. Безкоштовно надається 1 паркомісце на території. Комерційні умови: Орендна плата - 23$/м2 + 5$ експлуатаційні+ комунальні платежі згідно з лічильників. 7000дол
Скачать .pdf

Посредник

Юрій

Обновлено: 27 Апреля 2026
Код объекта: W-7444899
CAPTCHA CAPTCHA на основе изображений
Введите символы, изображенные на рисунке.

Пожаловаться на объявление

W-7444899 |

Укажите причину жалобы

Максимальное количество символов 500
CAPTCHA CAPTCHA на основе изображений
Введите символы, изображенные на рисунке.

Схожі оголошення

  • Аренда Отдельно стоящее здание Изяславский пер. (Ватутина пер.) 6 в Киеве / W-7437950 (Отдельно стоящее здание, Изяславский пер. (Ватутина пер.)) 300 000 грн./месяц

    Аренда Отдельно стоящее здание Изяславский пер. (Ватутина пер.) 6 в Киеве / W-7437950

  • Аренда Офиса ул. Липкивского Василия (Урицкого) 14 в Киеве / W-7441921 (Офис, ул. Липкивского Василия (Урицкого)) 310 000* грн./месяц

    Аренда Офиса ул. Липкивского Василия (Урицкого) 14 в Киеве / W-7441921

  • Аренда Офиса ул. Гетьмана Вадима (Индустриальная) 6 в Киеве / W-7376550 (Офис, ул. Гетьмана Вадима (Индустриальная)) 288 000 грн./месяц

    Аренда Офиса ул. Гетьмана Вадима (Индустриальная) 6 в Киеве / W-7376550

  • Аренда Бизнес-центра Гавела Вацлава бульв. (Лепсе Ивана) в Киеве / J-32361 (Бизнес-центр, Гавела Вацлава бульв. (Лепсе Ивана)) 319 000* грн./месяц

    Аренда Бизнес-центра Гавела Вацлава бульв. (Лепсе Ивана) в Киеве / J-32361

  • Аренда Офиса ул. Гонгадзе (Машиностроительная) в Киеве / G-532201 (Офис, ул. Гонгадзе (Машиностроительная)) 332 000* грн./месяц

    Аренда Офиса ул. Гонгадзе (Машиностроительная) в Киеве / G-532201

  • Аренда Офиса ул. Липкивского Василия (Урицкого) в Киеве / D-40136 (Офис, ул. Липкивского Василия (Урицкого)) 288 000* грн./месяц

    Аренда Офиса ул. Липкивского Василия (Урицкого) в Киеве / D-40136

  • Аренда Офисно-складское помещение Воздушних Сил просп. (Воздухофлотский просп.) 75 в Киеве / W-7447834 (Офисно-складское помещение, Воздушних Сил просп. (Воздухофлотский просп.)) 300 000 грн./месяц

    Аренда Офисно-складское помещение Воздушних Сил просп. (Воздухофлотский просп.) 75 в Киеве / W-7447834

  • Аренда Нежилого помещения ул. Преображенская (Клименко Ивана) в Киеве / P-34354 (Нежилое помещение, ул. Преображенская (Клименко Ивана)) 341 000* грн./месяц

    Аренда Нежилого помещения ул. Преображенская (Клименко Ивана) в Киеве / P-34354

  • Аренда Нежилого помещения ул. Эрнста Федора в Киеве / G-376919 (Нежилое помещение, ул. Эрнста Федора) 328 000 грн./месяц

    Аренда Нежилого помещения ул. Эрнста Федора в Киеве / G-376919

  • Аренда Бизнес-центра ул. Преображенская (Клименко Ивана) 25 в Киеве / W-7444392 (Бизнес-центр, ул. Преображенская (Клименко Ивана)) 341 000* грн./месяц

    Аренда Бизнес-центра ул. Преображенская (Клименко Ивана) 25 в Киеве / W-7444392

  • Аренда Нежилого помещения Воздушних Сил просп. (Воздухофлотский просп.) 75 в Киеве / W-7433044 (Нежилое помещение, Воздушних Сил просп. (Воздухофлотский просп.)) 300 000 грн./месяц

    Аренда Нежилого помещения Воздушних Сил просп. (Воздухофлотский просп.) 75 в Киеве / W-7433044

  • Аренда Нежилого помещения ул. Борщаговская в Киеве / G-747714 (Нежилое помещение, ул. Борщаговская) 280 000 грн./месяц

    Аренда Нежилого помещения ул. Борщаговская в Киеве / G-747714