Зарегистрироваться /

Аренда Офиса ул. Дегтяревская 21 в Киеве / W-7443826

Коммерческая недвижимость
Цена:
665 000* грн.
/месяц
$
15 000 $ (1$ = 44.3 грн.)
12 700 € (1€ = 52.25 грн.)
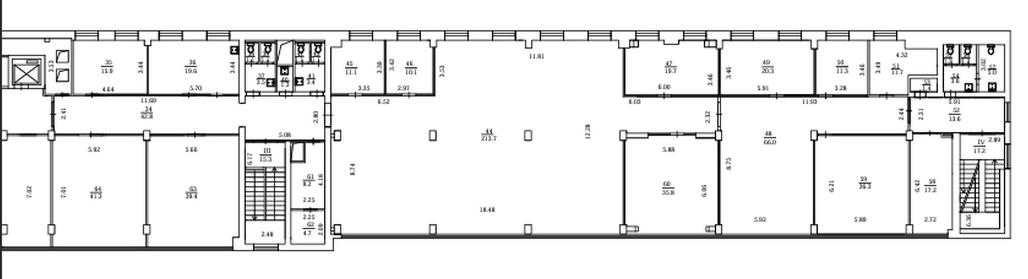
Пропонується в оренду openspace офіс 780 м2, який розташований на 6 поверсі. Є бомбосховище. Повністю автономна будівля зі своєю свердловиною, генератором та 7-ма незалежними провайдерами (Оптоволокно). Кондиціонери, припливно-витяжна система вентиляції. Планування: - openspace (~250м2) - сім кабінетів - можливе облаштування зони рецепції - санвузли - кухня Найближче метро Політехнічний інститут – 15 хвилин пішки, Лук'янівська – 15 хвилин. Вартість оренди на місяць – 15 000 дол/міс. Додатково сплачуються комунальні послуги. Офіс автономний. Генератор. Великий наземний паркінг.
Скачать .pdf

Посредник

Юрій

Обновлено: 20 Апреля 2026
Код объекта: W-7443826
CAPTCHA CAPTCHA на основе изображений
Введите символы, изображенные на рисунке.

Пожаловаться на объявление

W-7443826 |

Укажите причину жалобы

Максимальное количество символов 500
CAPTCHA CAPTCHA на основе изображений
Введите символы, изображенные на рисунке.

Схожі оголошення