Зарегистрироваться /

Аренда Офиса ул. Чайки В. 1 в Чайках / W-7442999

Коммерческая недвижимость
Цена:
58 000 грн.
/месяц
$
1 320 $ (1$ = 43.85 грн.)
1 120 € (1€ = 51.85 грн.)
Профиль:
Площадь:
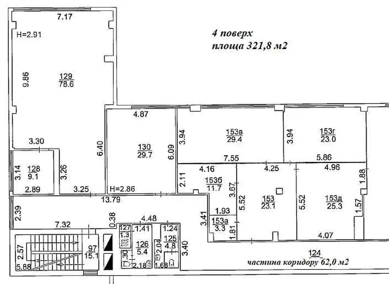
322 м²
Цена за м²:
180 грн.
Пропонуємо в оренду офісні приміщення на 4-му поверсі, площею 321,8 м2 на території складкого комплексу в Київо-Святошинському районі, с. Чайки. У будівлі встановлено систему видогляду, контроль доступу, пожежну сигналізацію, є цілодобова охорона. Вартість оренди 180 грн/м 2 + експлуатаційні послуги 30 грн/м2 + комунальні послуги
Скачать .pdf

Посредник

Юрій

Обновлено: 16 Апреля 2026
Код объекта: W-7442999
CAPTCHA CAPTCHA на основе изображений
Введите символы, изображенные на рисунке.

Пожаловаться на объявление

W-7442999 |

Укажите причину жалобы

Максимальное количество символов 500
CAPTCHA CAPTCHA на основе изображений
Введите символы, изображенные на рисунке.