Зарегистрироваться /

Продажа квартиры ул. Мишуги Александра 10 в Киеве / W-7440835

3-комнатная квартира
Цена:
5 239 000* грн.
$
119 000 $ (1$ = 44.1 грн.)
101 000 € (1€ = 52.05 грн.)
Кол-во комнат:
Площадь (общая):
108
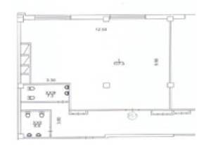
ПРОДАМ своє нежитлове приміщення загал. площею = 108 m2.. Приміщення розташоване на 2-му поверсі Бізнес центра Паралель. Вхід загальний чарез охоронця – спостерегача. БЦ має свій потужний генератор ! Завжди є світло, тепло, вода гаряча та холодна ! БЦ розташований на території заселеного ЖК. Ст.м .Позняки – 70 м. Приміщення належить до комерційної нерухомості. На даний час приміщення винаймають орендарі. Офіс. Кондиціювання, Відеоспостереження, Пожежна сигналізація, інтернет оптволокно. Світле та просторе приміщення, з дорогим, якісним ремонтом. Висота стелі 2.8 м. БЦ – збудован та здан в експлуатацію у 2016р. Санвузли на поверсі М / Ж. Вартість – 1100 $ / m2. Загальна вартість = 118.800 $. Запрошую до співпраці сертифікованих ріелторів, комісійна виногорода – 3 % Власник юридична особа. Контактний тел.: 096-050-66-50
Скачать .pdf

Посредник

Власник

Обновлено: 11 Мая 2026
Код объекта: W-7440835
CAPTCHA CAPTCHA на основе изображений
Введите символы, изображенные на рисунке.

Пожаловаться на объявление

W-7440835 |

Укажите причину жалобы

Максимальное количество символов 500
CAPTCHA CAPTCHA на основе изображений
Введите символы, изображенные на рисунке.

Схожі оголошення

  • Продажа квартиры ул. Чавдар Елизаветы 13 в Киеве / W-7400179 (ул. Чавдар Елизаветы, 13) 5 733 000* грн.

    Продажа квартиры ул. Чавдар Елизаветы 13 в Киеве / W-7400179

  • Продажа квартиры ул. Драгоманова 25 в Киеве / G-698617 (ул. Драгоманова, 25) 5 733 000* грн.

    Продажа квартиры ул. Драгоманова 25 в Киеве / G-698617

  • Продажа квартиры ул. Срибнокильская 1 в Киеве / W-7376106 (ул. Срибнокильская, 1) 5 733 000* грн.

    Продажа квартиры ул. Срибнокильская 1 в Киеве / W-7376106

  • Продажа квартиры ул. Заречная 2 корпус 1 в Киеве / L-31859 (ул. Заречная, 2 корпус 1) 5 420 000* грн.

    Продажа квартиры ул. Заречная 2 корпус 1 в Киеве / L-31859

  • Продажа квартиры ул. Гмыри Бориса 9в в Киеве / W-7369049 (ул. Гмыри Бориса, 9в) 5 733 000* грн.

    Продажа квартиры ул. Гмыри Бориса 9в в Киеве / W-7369049

  • Продажа квартиры ул. Причальная 5 корпус 10 в Киеве / Q-16797 (ул. Причальная, 5 корпус 10) 5 292 000* грн.

    Продажа квартиры ул. Причальная 5 корпус 10 в Киеве / Q-16797

  • Продажа квартиры ул. Княжий Затон 28 в Киеве / W-7439180 (ул. Княжий Затон, 28) 5 557 000* грн.

    Продажа квартиры ул. Княжий Затон 28 в Киеве / W-7439180

  • Продажа квартиры ул. Заречная 4 в Киеве / W-7450789 (ул. Заречная, 4) 5 270 000* грн.

    Продажа квартиры ул. Заречная 4 в Киеве / W-7450789

  • Продажа квартиры Бажана Николая просп. 16 в Киеве / W-7449815 (Бажана Николая просп., 16) 5 733 000* грн.

    Продажа квартиры Бажана Николая просп. 16 в Киеве / W-7449815

  • Продажа квартиры ул. Днепровская наб. 17к в Киеве / F-48042 (ул. Днепровская наб., 17к) 4 719 000* грн.

    Продажа квартиры ул. Днепровская наб. 17к в Киеве / F-48042

  • Продажа квартиры ул. Гмыри Бориса 10/40 в Киеве / G-1979484 (ул. Гмыри Бориса, 10/40) 5 292 000* грн.

    Продажа квартиры ул. Гмыри Бориса 10/40 в Киеве / G-1979484

  • Продажа квартиры ул. Причальная 8 в Киеве / W-7450367 (ул. Причальная, 8) 5 072 000* грн.

    Продажа квартиры ул. Причальная 8 в Киеве / W-7450367