Зарегистрироваться /

Продажа Торгово-офисного помещения Берестейский просп. (Победы просп) в Киеве / W-7440817

Коммерческая недвижимость
Цена:
67 230 000* грн.
$
1 516 000 $ (1$ = 44.35 грн.)
1 316 000 € (1€ = 51.1 грн.)
Площадь:
489 м²
Цена за м²:
137 000 грн.
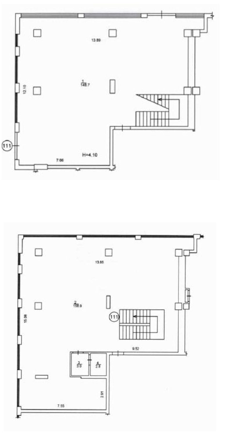
ПРОДАМ нежитлові приміщення загальною площею 489 м2, пр-т Берестейський, 67, ЖК Сан Франціско. Приміщення з орендарем І приміщення – 313,4 м2, розташоване з фасаду, вітринні вікна та вхід з проспекту ІІ приміщення – 175,7 м2, розташоване на 2-му поверсі ЖК Сан Франціско, окремий вхід з двору Зроблений сучасний і якісний ремонт 2023 р. Приміщення оснащене під медичну клініку. На даний час приміщення займають орендарі Поруч ст.м.Нивки – 100 м Вартість - 3100 usd / m2. Загальна вартість = 1.515.900 usd Власник юридична особа, без комісії. Запрошую до співпраці сертифікованих ріелторів, комісійна виногорода – 3 % Інформація за тел.: 096-050-66-50
Скачать .pdf

Владелец

Власник

Обновлено: 14 Марта 2026
Код объекта: W-7440817
CAPTCHA CAPTCHA на основе изображений
Введите символы, изображенные на рисунке.

Пожаловаться на объявление

W-7440817 |

Укажите причину жалобы

Максимальное количество символов 500
CAPTCHA CAPTCHA на основе изображений
Введите символы, изображенные на рисунке.

Схожі оголошення

  • Продажа Отдельно стоящее здание ул. Куреневская 5/7 в Киеве / W-7439658 (Отдельно стоящее здание, ул. Куреневская) 73 180 000* грн.

    Продажа Отдельно стоящее здание ул. Куреневская 5/7 в Киеве / W-7439658

  • Продажа Магазина ул. Гонгадзе (Машиностроительная) 41 в Киеве / W-7358039 (Магазин, ул. Гонгадзе (Машиностроительная)) 63 860 000* грн.

    Продажа Магазина ул. Гонгадзе (Машиностроительная) 41 в Киеве / W-7358039

  • Продажа Офиса ул. Большая Васильковская (Красноармейская) в Киеве / D-40110 (Офис, ул. Большая Васильковская (Красноармейская)) 67 780 000* грн.

    Продажа Офиса ул. Большая Васильковская (Красноармейская) в Киеве / D-40110

  • Продажа Нежилого помещения ул. Большая Васильковская (Красноармейская) в Киеве / G-1990894 (Нежилое помещение, ул. Большая Васильковская (Красноармейская)) 73 180 000* грн.

    Продажа Нежилого помещения ул. Большая Васильковская (Красноармейская) в Киеве / G-1990894

  • Продажа Нежилого помещения ул. Садово-Ботаническая (Тимирязевская) в Киеве / I-35236 (Нежилое помещение, ул. Садово-Ботаническая (Тимирязевская)) 66 530 000* грн.

    Продажа Нежилого помещения ул. Садово-Ботаническая (Тимирязевская) в Киеве / I-35236

  • Продажа Бизнес-центра ул. Ростиславская (Рыбалко Маршала) в Киеве / W-7401383 (Бизнес-центр, ул. Ростиславская (Рыбалко Маршала)) 62 090 000* грн.

    Продажа Бизнес-центра ул. Ростиславская (Рыбалко Маршала) в Киеве / W-7401383

  • Продажа Офиса ул. Лютеранская в Киеве / G-1799064 (Офис, ул. Лютеранская) 64 310 000* грн.

    Продажа Офиса ул. Лютеранская в Киеве / G-1799064

  • Продажа Офиса Шевченко Тараса бульв. в Киеве / R-30157 (Офис, Шевченко Тараса бульв.) 60 980 000* грн.

    Продажа Офиса Шевченко Тараса бульв. в Киеве / R-30157

  • Продажа Нежилого помещения ул. Панорамная в Киеве / W-7097959 (Нежилое помещение, ул. Панорамная) 66 530 000* грн.

    Продажа Нежилого помещения ул. Панорамная в Киеве / W-7097959