Зарегистрироваться /

Аренда Магазина ул. Ахматовой 30 в Киеве / W-7440362

Коммерческая недвижимость
Цена:
77 400* грн.
/месяц
$
1 750 $ (1$ = 44.2 грн.)
1 480 € (1€ = 52.1 грн.)
Профиль:
Площадь:
56.5 м²
Цена за м²:
1 370 грн.
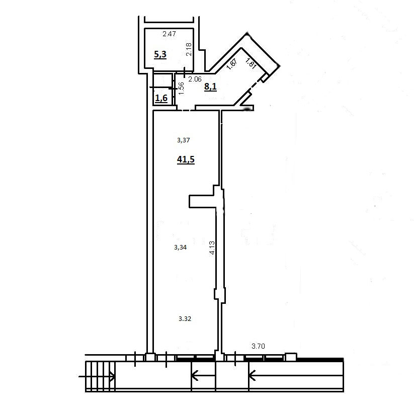
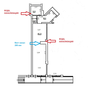
ФАСАД! 56,5 м² — вул. Анни Ахматової, 30 — ідеально під будь‑який бізнес Поверх: 1-й Формат: фасад, окремий вхід, великі вітрини, правильна форма Переваги приміщення - 100% фасад на активний пішохідний потік - Великі вітрини — максимальна видимість - Окремий вхід з вулиці - Сучасний ремонт, чистий та доглянутий стан - Потужність 17–30 кВт — підходить навіть для вимогливого обладнання - Парковка перед входом - Приміщення проглядається з дороги, поруч зупинки транспорту Планування - Велика відкрита зала (правильний прямокутник) - Санвузол - Підсобне приміщення Підходить для - медичного центру / аналізів / косметології - салону краси / барбершопу - кав’ярні, пекарні, десертної - магазину, шоуруму, сервісу - офісу з клієнтським потоком - пункту видачі / сервісного центру Локація Будинок розташований у серці Позняків — один із найбільш щільно заселених районів Києва. Поруч: школи, супермаркети, зупинки, житлові комплекси, постійний потік мешканців Ахматової, Драгоманова, Срібнокільської.
Скачать .pdf

Посредник

Евгений

Обновлено: 8 Апреля 2026
Код объекта: W-7440362
CAPTCHA CAPTCHA на основе изображений
Введите символы, изображенные на рисунке.

Пожаловаться на объявление

W-7440362 |

Укажите причину жалобы

Максимальное количество символов 500
CAPTCHA CAPTCHA на основе изображений
Введите символы, изображенные на рисунке.

Схожі оголошення