Зарегистрироваться /

Продажа дома ул. Гоголя 24 в Дударкове / W-7439235

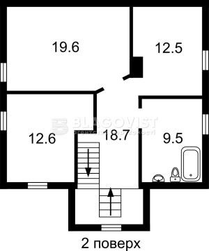
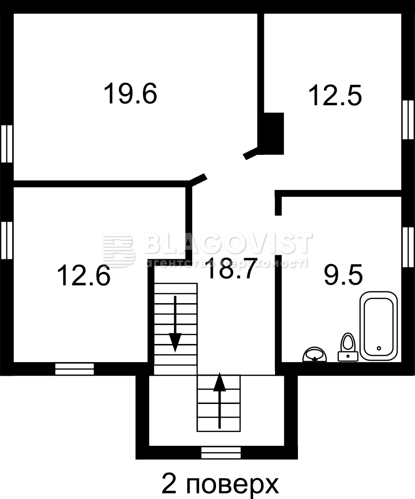
5-комнатный дом
Цена:
6 445 000* грн.
$
145 000 $ (1$ = 44.45 грн.)
125 000 € (1€ = 51.75 грн.)
Этажность:
2
Кол-во комнат:
5
Общая площадь:
138
Площадь участка:
12 сот.
Материал стен:
Кирпич
Ремонт (состояние):
с евроремонтом
Электроснабжение:
да
Отопление:
Газовый котел
Газоснабжение:
Есть
Водоснабжение:
Скважина
Канализация:
В доме
До Киева:
25 км
мебель
Продається двоповерховий будинок 138 м² під Києвом Світлий і теплий будинок у сучасному стилі. Будувався для себе, з продуманим плануванням — без зайвих кімнат. 1 поверх: кухня-вітальня з виходом на терасу, піч, спальня, суміжний санвузол, технічне приміщення, гардеробна біля входу. 2 поверх: коридор (можна облаштувати гардеробну), три спальні, великий суміжний санвузол. У дитячій кімнаті — продовження ходів печі з першого поверху, що забезпечує додаткове тепло. Затишний будинок для комфортного життя сім’ї.
Скачать .pdf

Посредник

Сімонов Олег

Обновлено: 13 Мая 2026
Код объекта: W-7439235
CAPTCHA CAPTCHA на основе изображений
Введите символы, изображенные на рисунке.

Пожаловаться на объявление

W-7439235 |

Укажите причину жалобы

Максимальное количество символов 500
CAPTCHA CAPTCHA на основе изображений
Введите символы, изображенные на рисунке.

Схожі оголошення