Зарегистрироваться /

Продажа квартиры ул. Луценко Дмитрия 12 в Киеве / W-7438571

2-комнатная квартира
Цена:
5 320 000* грн.
$
121 000 $ (1$ = 44.15 грн.)
104 000 € (1€ = 51.25 грн.)
Жилой комплекс:
Кол-во комнат/Расположение:
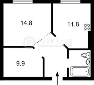
Площадь (общая/жилая/кухни):
48/25/12
Этаж/Этажность:
4/9
Тип (серия) дома:
спецпроект 2011-2015 гг.
Материал стен:
Панель
Материал пола:
Комбинир.
Материал перекрытий:
Железобетон
Количество, тип санузлов:
1, Совместный
Парковка:
да
Ремонт (состояние):
с евроремонтом
мебель
Продається затишна 2-кімнатна квартира в престижному ЖК "Британський Квартал" за адресою Київ, вул. Дмитра Луценка, 12. Цей сучасний комплекс 2011-2015 років будівництва поєднує надійність панельних стін і залізобетонних перекриттів з атмосферою англійської класики. На 4-му поверсі 9-поверхового будинку з ліфтом і одним виходом, квартира площею 48 м² (житлова 24,7 м², кухня 11,8 м²) пропонує продумане планування для комфортного життя. Для сімейних покупців це ідеальний варіант: закрита територія з цілодобовою охороною та відеоспостереженням забезпечує безпеку, а поруч — сквер з трьома озерами, іподром, дитячі майданчики, 3 школи та 4 дитячі садки. Фітнес-центр Sport Life "Теремки" і парк з озером сприяють активному відпочинку. Квартира повністю готова до проживання — з меблями, побутовою технікою та новим газовим котлом Bosch для автономного опалення та гарячої води.
Скачать .pdf

Посредник

Ірина

Обновлено: 11 Марта 2026
Код объекта: W-7438571
CAPTCHA CAPTCHA на основе изображений
Введите символы, изображенные на рисунке.

Пожаловаться на объявление

W-7438571 |

Укажите причину жалобы

Максимальное количество символов 500
CAPTCHA CAPTCHA на основе изображений
Введите символы, изображенные на рисунке.

Схожі оголошення

  • Продажа квартиры ул. Максимовича Михаила (Трутенко Онуфрия) 28к в Киеве / Q-29820 (ул. Максимовича Михаила (Трутенко Онуфрия), 28к) 5 558 000* грн.

    Продажа квартиры ул. Максимовича Михаила (Трутенко Онуфрия) 28к в Киеве / Q-29820

  • Продажа квартиры ул. Антоновича Владимира (Горького) 37/13 в Киеве / W-7437805 (ул. Антоновича Владимира (Горького), 37/13) 5 475 000* грн.

    Продажа квартиры ул. Антоновича Владимира (Горького) 37/13 в Киеве / W-7437805

  • Продажа квартиры ул. Малевича Казимира (Боженко) 89 в Киеве / L-31071 (ул. Малевича Казимира (Боженко), 89) 5 077 000* грн.

    Продажа квартиры ул. Малевича Казимира (Боженко) 89 в Киеве / L-31071

  • Продажа квартиры ул. Здановской Юлии (Ломоносова) 29 в Киеве / W-7442444 (ул. Здановской Юлии (Ломоносова), 29) 4 808 000* грн.

    Продажа квартиры ул. Здановской Юлии (Ломоносова) 29 в Киеве / W-7442444

  • Продажа квартиры ул. Максимовича Михаила (Трутенко Онуфрия) 3г в Киеве / W-7417227 (ул. Максимовича Михаила (Трутенко Онуфрия), 3г) 5 298 000* грн.

    Продажа квартиры ул. Максимовича Михаила (Трутенко Онуфрия) 3г в Киеве / W-7417227

  • Продажа квартиры ул. Заболотного Академика 26 в Киеве / W-7442459 (ул. Заболотного Академика, 26) 4 812 000* грн.

    Продажа квартиры ул. Заболотного Академика 26 в Киеве / W-7442459

  • Продажа квартиры Моторный пер. 9а в Киеве / G-698588 (Моторный пер., 9а) 5 519 000* грн.

    Продажа квартиры Моторный пер. 9а в Киеве / G-698588

  • Продажа квартиры ул. Теремковская 4а в новостройке в Киеве / W-7233268 (ул. Теремковская, 4а) 5 740 000* грн.

    Продажа квартиры ул. Теремковская 4а в новостройке в Киеве / W-7233268

  • Продажа квартиры ул. Малевича Казимира (Боженко) 89 в Киеве / W-7437723 (ул. Малевича Казимира (Боженко), 89) 5 695 000* грн.

    Продажа квартиры ул. Малевича Казимира (Боженко) 89 в Киеве / W-7437723

  • Продажа квартиры ул. Заболотного Академика 1 в Киеве / W-7439054 (ул. Заболотного Академика, 1) 5 077 000* грн.

    Продажа квартиры ул. Заболотного Академика 1 в Киеве / W-7439054

  • Продажа квартиры Голосеевский проспект (40-летия Октября просп.) 95а в Киеве / B-109586 (Голосеевский проспект (40-летия Октября просп.), 95а) 5 828 000* грн.

    Продажа квартиры Голосеевский проспект (40-летия Октября просп.) 95а в Киеве / B-109586

  • Продажа квартиры ул. Подмогильного Валерьяна 5 в Киеве / W-7441510 (ул. Подмогильного Валерьяна, 5) 4 857 000* грн.

    Продажа квартиры ул. Подмогильного Валерьяна 5 в Киеве / W-7441510