Зарегистрироваться /

Аренда Бизнес-центра ул. Пимоненко Николая 13 в Киеве / W-7438466

Коммерческая недвижимость
Цена:
278 000* грн.
/месяц
$
6 290 $ (1$ = 44.15 грн.)
5 420 € (1€ = 51.25 грн.)
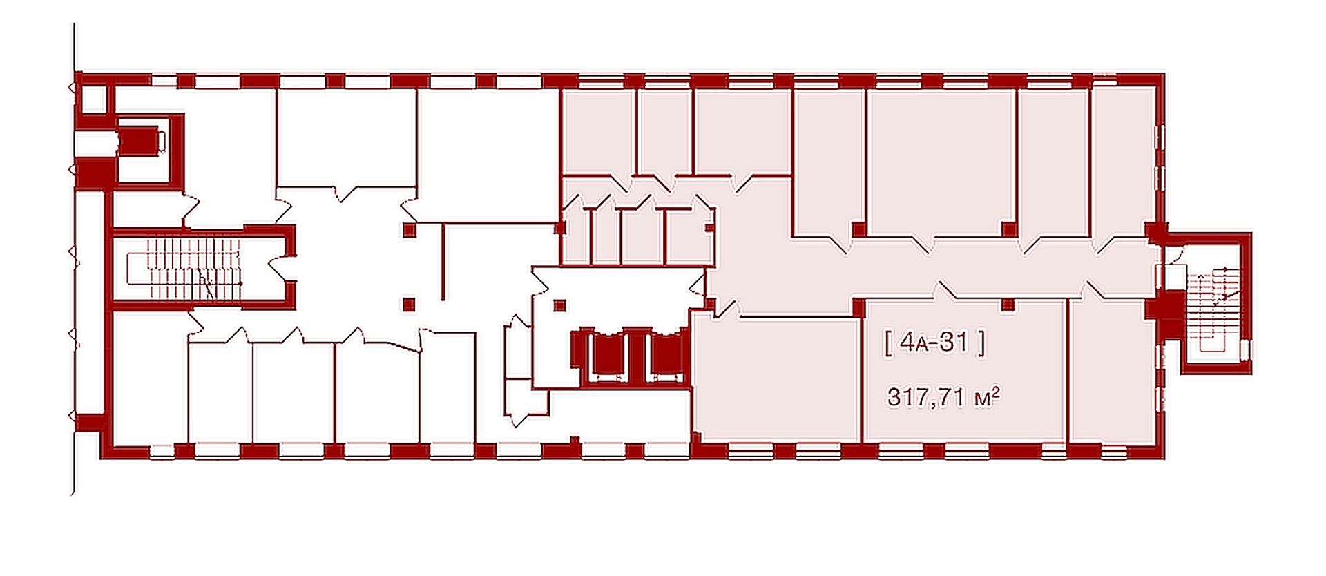
Пропонується функціональне офісне приміщення після орендаря з кабінетним плануванням та високими стелями. Є окрема гардеробна кімната, серверна, зона під кухню, оновлені санвузли та запасний вихід. Стіни пофарбовані у світлі пастельні тони, на підлозі ковролін, підвісна стеля Armstrong, радіаторна система опалення. Поруч кав’ярня та BBQ-зона, фітнес-зал Sport & Spa. Біля корпусу — майданчик для авто на 450 місць, зарядні станції для електрокарів та автомийка. Цілодобова охорона бізнес-центру.
Скачать .pdf

Посредник

Мельник Олена

Обновлено: 16 Марта 2026
Код объекта: W-7438466
CAPTCHA CAPTCHA на основе изображений
Введите символы, изображенные на рисунке.

Пожаловаться на объявление

W-7438466 |

Укажите причину жалобы

Максимальное количество символов 500
CAPTCHA CAPTCHA на основе изображений
Введите символы, изображенные на рисунке.

Схожі оголошення