Зарегистрироваться /

Аренда Офиса ул. Большая Васильковская (Красноармейская) в Киеве / W-7437538

Коммерческая недвижимость
Цена:
184 000* грн.
/месяц
$
4 180 $ (1$ = 44.1 грн.)
3 550 € (1€ = 51.95 грн.)
Кол-во комнат:
7
Профиль:
Площадь:
220 м²
Этаж/Этажность:
5/9
Цена за м²:
837 грн.
Ремонт (состояние):
с евроремонтом
Парковка:
да
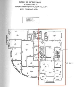
БЕЗ КОМІСІЇ! Оренда офісу 220 м2 на вул. Велика Васильківська (Печерський район). Офіс розташований на 5-му поверсі, планування: Open Space, 5 кабінетів, кухня, 4 с/в. Бізнес центр обладнаний пожежною та охоронною системами безпеки, системою цілодобового відеоспостереження, системою контролю доступу, центральною системою вентиляції та кондиціювання. У пішій доступності ст.метро Олімпійська та Палац "Україна" (6-7 хвилин). Ціна оренди вказана без урахування ПДВ. Додатково оплачуються комунальні платежі. Генератор. Код оголошення RC-221-761.
Скачать .pdf

Посредник

ALAN

Обновлено: 29 Апреля 2026
Код объекта: W-7437538
CAPTCHA CAPTCHA на основе изображений
Введите символы, изображенные на рисунке.

Пожаловаться на объявление

W-7437538 |

Укажите причину жалобы

Максимальное количество символов 500
CAPTCHA CAPTCHA на основе изображений
Введите символы, изображенные на рисунке.

Схожі оголошення