Зарегистрироваться /

Аренда Офиса ул. Большая Житомирская в Киеве / W-7437400

Коммерческая недвижимость
Цена:
95 600* грн.
/месяц
$
2 200 $ (1$ = 43.45 грн.)
1 860 € (1€ = 51.5 грн.)
Кол-во комнат:
3
Профиль:
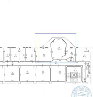
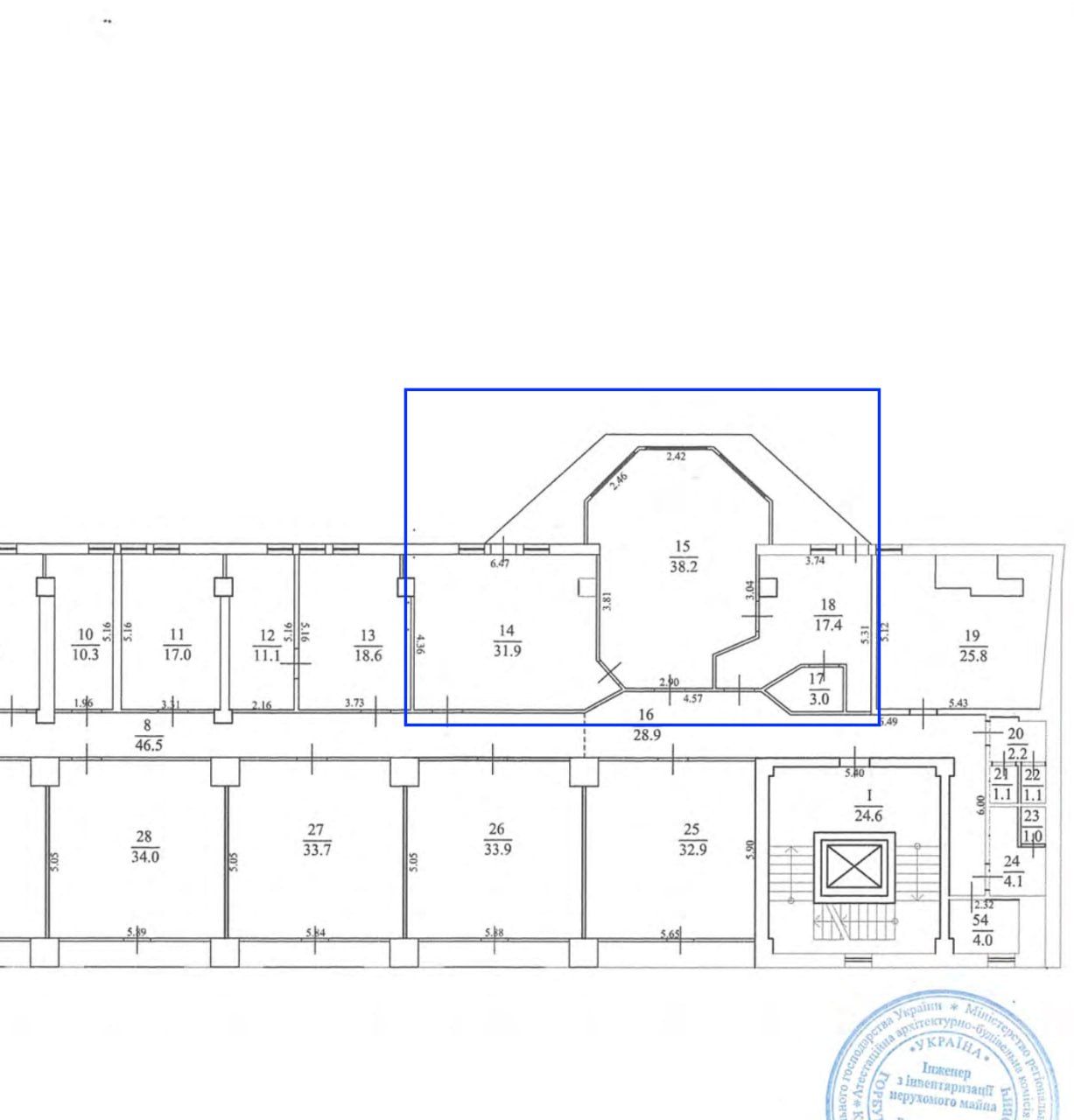
Площадь:
110 м²
Этаж/Этажность:
7/11
Цена за м²:
869 грн.
Ремонт (состояние):
с ремонтом
БЕЗ КОМІСІЇ! Оренда офісу 110 м2 в Бізнес Центрі на вулиці Велика Житомирська. Приміщення розташоване на 7 поверсі, планування: хол із зоною рецепції, 2 кабінети, з/в. Будівля оснащена: центральною системою вентиляції, кондиціюванням, СКД, фізичною охороною, пожежною сигналізацією, підземним паркінгом, генератором. Орендна ставка 20 $/м2 додатково оплачуються комунальні платежі. Код оголошення RC-095-521.
Скачать .pdf

Посредник

ALAN

Обновлено: 24 Февраля 2026
Код объекта: W-7437400
CAPTCHA CAPTCHA на основе изображений
Введите символы, изображенные на рисунке.

Пожаловаться на объявление

W-7437400 |

Укажите причину жалобы

Максимальное количество символов 500
CAPTCHA CAPTCHA на основе изображений
Введите символы, изображенные на рисунке.

Схожі оголошення