Зарегистрироваться /

Аренда квартиры ул. Бальзака Оноре де 81/1 в Киеве / W-7436919

2-комнатная квартира
Цена:
14 000 грн.
/месяц
$
322 $ (1$ = 43.45 грн.)
273 € (1€ = 51.35 грн.)
Кол-во комнат:
Площадь (общая):
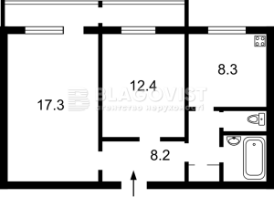
60 м²
Здається в оренду світла, простора 2-к квартира по Оноре де Бальзака, 81/1, Троєщина. Квартира з гарним ремонтом, з меблями, технікой. 14-й поверх 16-поверхового будинку. В квартирі електроплита, є бойлер, тепла підлога в кухні та ванній кімнаті. Привітні сусіди по тамбуру. Серія будинку КТ; стіни: керамзито-бетон; перекриття: залізобетон. Гарний стан під"їзду, облаштований двір. Поряд супермаркет "VARUS", "Фора", "Теремок", "Дніпряночка", школа 306, 307, дитячий садок 459, 770 D-39927
Скачать .pdf

Посредник

Головко Анна

Обновлено: 20 Февраля 2026
Код объекта: W-7436919
CAPTCHA CAPTCHA на основе изображений
Введите символы, изображенные на рисунке.

Пожаловаться на объявление

W-7436919 |

Укажите причину жалобы

Максимальное количество символов 500
CAPTCHA CAPTCHA на основе изображений
Введите символы, изображенные на рисунке.

Схожі оголошення