Зарегистрироваться /

Аренда Офиса Леси Украинки бульв. 23 в Киеве / W-7435654

Коммерческая недвижимость
Цена:
249 000* грн.
/месяц
$
5 760 $ (1$ = 43.22 грн.)
4 830 € (1€ = 51.5 грн.)
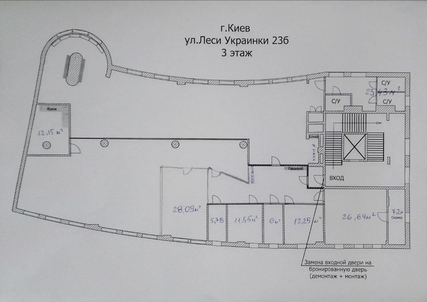
Оренда офісу 420 кв.м. Планування: Open Space по 100-120 метрів + 3 кабінети+ кухня + 2 санвузла+ серверна. Офіс здається без меблів. Переваги та оснащення: Якісний офісний ремонт. Сучасна система вентиляції та кондиціонування (конвекторні кондиціонери), ліфт у будівлі. Пожежна та охоронна сигналізація Відеоспостереження в коридорах загального користування, дві броньовані двері на вході до офісу, власна служба охорони. Можливість підключення генератора для автономної роботи Паркувальні місця – є стихійна безкоштовна парковка та є підземний паркінг за додаткову плату.
Скачать .pdf

Посредник

Ірина

Обновлено: 12 Февраля 2026
Код объекта: W-7435654
CAPTCHA CAPTCHA на основе изображений
Введите символы, изображенные на рисунке.

Пожаловаться на объявление

W-7435654 |

Укажите причину жалобы

Максимальное количество символов 500
CAPTCHA CAPTCHA на основе изображений
Введите символы, изображенные на рисунке.

Схожі оголошення