Зарегистрироваться /

Продажа Творческая мастерская ул. Речная в Киеве / W-7433735

Коммерческая недвижимость
Цена:
9 994 000* грн.
$
230 000 $ (1$ = 43.45 грн.)
194 000 € (1€ = 51.5 грн.)
Адрес:
Кол-во комнат:
4
Площадь:
115 м²
Тип (серия) дома:
Спецпроект 2021-2025 гг
Этаж/Этажность:
4/23
Цена за м²:
86 900 грн.
Материал стен:
Монолит
Парковка:
да
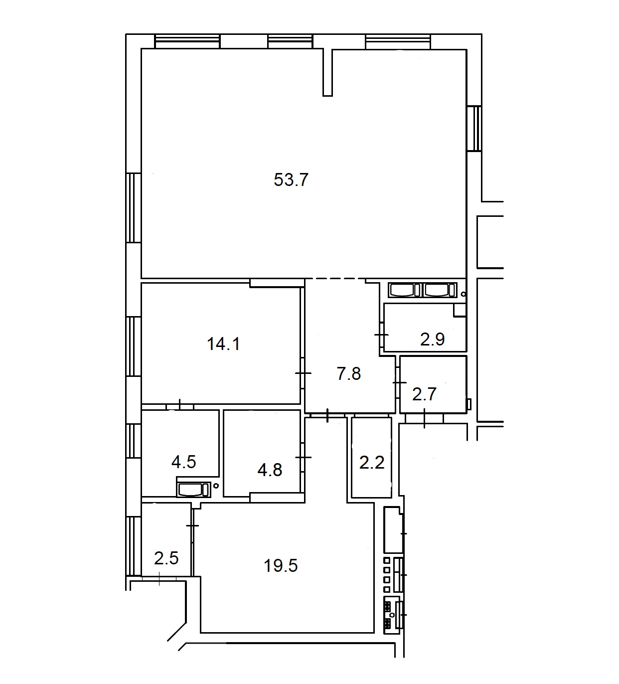
ЖК КАМЕРТОН, вул.Річкова (Річна), 4. ПРОДАЖ КОМЕРЦІЙНОГО ПРИМІЩЕННЯ ЗАГАЛЬНА площа -115кв.м. ОСНОВНА - 87.3кв.м. Н - 3.0м. - тамбур-шлюз - 2, 7кв.м. - коридор - 7,8 кв.м. - підсобне приміщення - 2,2кв.м. - кабінет - 19, 5кв.м. - тамбур - 2,5 кв.м. - підсобне приміщення - 4,8кв.м. - кабінет - 14,1кв.м. - підсобне приміщення - 4,5кв.м. - кабінет - 53,7 кв.м. - санвузол - 2,9кв.м. Монол.-каркасний будинок, утеплений фасад. Затишний хол першого поверху з каміном. Будинок має внутрішній сквер. Цілодобова охорона, система відеонагляду. З поверху на ліфті можна потрапити в паркінг, - станція зарядки для автомобілів, велопарковка Сучасні безшумні три ліфти *Kone* Розвинена інфраструктура. Найближчі ст.метро - Лук'янівська, Вокзальна, Політехнічний інститут . Будинок введено в експлуатацію, можливість відразу зайти на ремонт квартири... В наявності паркомісце для автомобіля. (У вартість не входить) ПРОПОЗИЦІЯ АКТУАЛЬНА. Телефонуйте у будь який час. Перегляд по домовленості.
Скачать .pdf

Посредник

Tatyana

Обновлено: 19 Февраля 2026
Код объекта: W-7433735
CAPTCHA CAPTCHA на основе изображений
Введите символы, изображенные на рисунке.

Пожаловаться на объявление

W-7433735 |

Укажите причину жалобы

Максимальное количество символов 500
CAPTCHA CAPTCHA на основе изображений
Введите символы, изображенные на рисунке.

Схожі оголошення

  • Продажа Производственного помещения ул. Автопарковая в Киеве / W-7436006 (Производственное помещение, ул. Автопарковая) 10 430 000* грн.

    Продажа Производственного помещения ул. Автопарковая в Киеве / W-7436006

  • Продажа Офиса ул. Менделеева в Киеве / D-16285 (Офис, ул. Менделеева) 10 860 000* грн.

    Продажа Офиса ул. Менделеева в Киеве / D-16285

  • Продажа Офиса Кловский спуск 7 в Киеве / W-7436199 (Офис, Кловский спуск) 10 820 000* грн.

    Продажа Офиса Кловский спуск 7 в Киеве / W-7436199

  • Продажа Нежилого помещения ул. Калнишевского Петра (Майорова М.) в Киеве / G-1976072 (Нежилое помещение, ул. Калнишевского Петра (Майорова М.)) 10 860 000* грн.

    Продажа Нежилого помещения ул. Калнишевского Петра (Майорова М.) в Киеве / G-1976072

  • Продажа Нежилого помещения Бажана Николая просп. 177 в Киеве / W-7435869 (Нежилое помещение, Бажана Николая просп.) 10 860 000* грн.

    Продажа Нежилого помещения Бажана Николая просп. 177 в Киеве / W-7435869

  • Продажа Офиса ул. Мокрая (Кудряшова) 18а в Киеве / W-7435977 (Офис, ул. Мокрая (Кудряшова)) 10 430 000* грн.

    Продажа Офиса ул. Мокрая (Кудряшова) 18а в Киеве / W-7435977

  • Продажа Офиса Берестейский просп. (Победы просп) 45 в Киеве / W-7436073 (Офис, Берестейский просп. (Победы просп)) 9 125 000* грн.

    Продажа Офиса Берестейский просп. (Победы просп) 45 в Киеве / W-7436073

  • Продажа Нежилого помещения Лобановского просп. (Краснозвездный просп.) 6в в Киеве / W-7019387 (Нежилое помещение, Лобановского просп. (Краснозвездный просп.)) 9 559 000* грн.

    Продажа Нежилого помещения Лобановского просп. (Краснозвездный просп.) 6в в Киеве / W-7019387

  • Продажа Офиса ул. Бульварно-Кудрявская (Воровского) в Киеве / G-2005497 (Офис, ул. Бульварно-Кудрявская (Воровского)) 9 125 000* грн.

    Продажа Офиса ул. Бульварно-Кудрявская (Воровского) в Киеве / G-2005497

  • Продажа Салона красоты ул. Богдановская в Киеве / G-616901 (Салон красоты, ул. Богдановская) 10 430 000* грн.

    Продажа Салона красоты ул. Богдановская в Киеве / G-616901