Зарегистрироваться /

Аренда Офиса ул. Прорезная (Центр) 18/1 в Киеве / W-7433095

Коммерческая недвижимость
Цена:
40 000 грн.
/месяц
$
924 $ (1$ = 43.29 грн.)
776 € (1€ = 51.45 грн.)
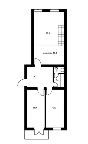
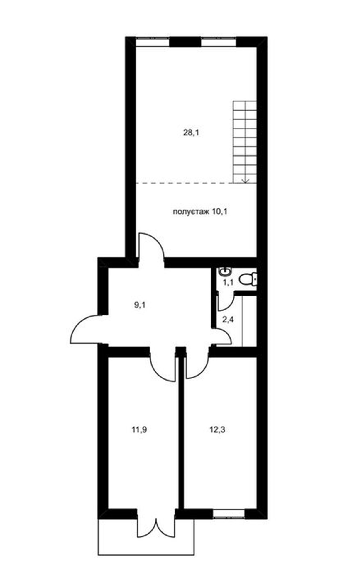
Хрещатик, Золоті Ворота, вул. Прорізна 18/1, діловий та культурний центр. 2 поверх, загальна площа 75м. Приміщення з офісним ремонтом. три кабінети, зона ресепшин, облаштована кухня, сан вузол, балкон, всі комунікації, кондиціонери, сигналізація, домофон. Частково мебльований. Презентабельна вхідна група. Фасадний вхід в під'їзд. Поруч сквер, кафе, банки. Світло Є постіно!
Скачать .pdf

Посредник

Обновлено: 26 Января 2026
Код объекта: W-7433095
CAPTCHA CAPTCHA на основе изображений
Введите символы, изображенные на рисунке.

Пожаловаться на объявление

W-7433095 |

Укажите причину жалобы

Максимальное количество символов 500
CAPTCHA CAPTCHA на основе изображений
Введите символы, изображенные на рисунке.

Схожі оголошення