Зарегистрироваться /

Продажа дома ул. Райдужная 8 в Белогородке / W-7431761

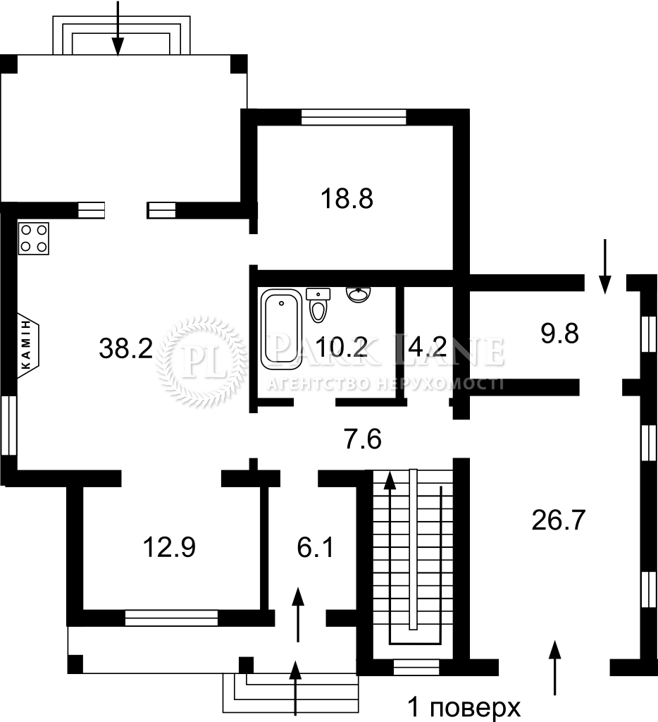
4-комнатный дом
Цена:
21 270 000* грн.
$
491 000 $ (1$ = 43.35 грн.)
420 000 € (1€ = 50.65 грн.)
Этажность:
2
Кол-во комнат:
4
Общая площадь:
236
Площадь участка:
12 сот.
с. Білогородка, вул. Веселкова, 8. Пропонуємо на продаж просторий капітальний 2-поверховий будинок. Будинок побудовано із якісних екологічних матеріалів: Перекриття залізобетон стіни кератерм утеплення мін.вата фундамент стрічкового типу з гідроізоляцією та утепленням цоколь червоний граніт склопакети енергозберігаючі WDS дах черепиця керамічна CREATON глазурована двері броньовані огорожа: клінкерна цегла вхідні ворота ковані Комунікації: свердловина 70м, каналізація, електрика (встановлено лічильник день-ніч), газ заведено до участка, розведено сигналізацію, опалення будинку: твердопаливний та електрокотел. Будинок під чистове оздоблення. В будинку зроблена вся електрика та всі комунікації. Стіни повністю готові до фарбування чи шпалер. Діючий камін. На першому поверсі та гаражі скрізь тепла підлога та покладено керамограніт На другому поверсі повністю готова ванна кімната
Скачать .pdf

Посредник

Наталия

Обновлено: 14 Января 2026
Код объекта: W-7431761
CAPTCHA CAPTCHA на основе изображений
Введите символы, изображенные на рисунке.

Пожаловаться на объявление

W-7431761 |

Укажите причину жалобы

Максимальное количество символов 500
CAPTCHA CAPTCHA на основе изображений
Введите символы, изображенные на рисунке.

Схожі оголошення