Зарегистрироваться /

Продажа квартиры ул. Выговского Ивана (Гречко Маршала) 12ж в Киеве / W-7431413

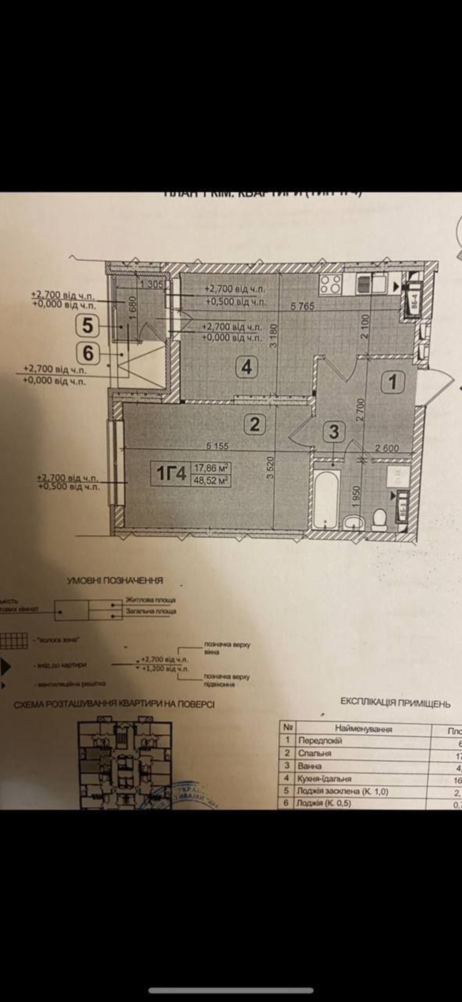
1-комнатная квартира
Цена:
4 106 000* грн.
$
93 000 $ (1$ = 44.15 грн.)
79 400 € (1€ = 51.7 грн.)
Жилой комплекс:
Кол-во комнат/Расположение:
Площадь (общая/жилая/кухни):
49/18/22
Этаж/Этажность:
24/25
Тип (серия) дома:
Спецпроект 2021-2025 гг
Материал стен:
Монолит
Материал пола:
Комбинир.
Материал перекрытий:
Железобетон
Количество, тип санузлов:
1, Совместный
Парковка:
да
Ремонт (состояние):
с евроремонтом
мебель
балкон
Пропонуємо до продажу видову 1к квартиру в сучасному ЖК "Сирецькі сади" Київ, вул. Івана Виговського (колишня Маршала Гречка), 12-К. Загальна площа 49 м², розташована на 24-му поверсі, що забезпечує панорамний вид на місто та зелень навколо. Локація ідеальна для комфортного життя: поруч метро "Сирець", зручний виїзд на ключові магістралі Києва, включаючи проспект Перемоги та Кільцеву дорогу. В районі розвинена інфраструктура – школи, дитячі садки, супермаркети (АТБ, Сільпо), аптеки, медичні центри та парк "Сирецький" для прогулянок і відпочинку. Це спокійний, зелений мікрорайон Подільського району з низьким рівнем шуму, але з швидким доступом до центру міста. Комплекс оснащений охороною, відеоспостереженням, паркінгом та дитячими майданчиками, що гарантує безпеку та зручність для сімей. Планування практичне: простора кухня-студія 22 м² для затишних вечерь, окрема спальня 17,85 м² для відпочинку, суміщений санвузол. Квартира з готовим ремонтом – ламінат, кахель, сантехніка, меблі.
Скачать .pdf

Посредник

Ірина

Обновлено: 24 Апреля 2026
Код объекта: W-7431413
CAPTCHA CAPTCHA на основе изображений
Введите символы, изображенные на рисунке.

Пожаловаться на объявление

W-7431413 |

Укажите причину жалобы

Максимальное количество символов 500
CAPTCHA CAPTCHA на основе изображений
Введите символы, изображенные на рисунке.

Схожі оголошення

  • Продажа квартиры ул. Семьи Кристеров 14в в Киеве / W-7447686 (ул. Семьи Кристеров, 14в) 4 415 000* грн.

    Продажа квартиры ул. Семьи Кристеров 14в в Киеве / W-7447686

  • Продажа квартиры ул. Межигорская 32 в Киеве / G-1995056 (ул. Межигорская, 32) 3 753 000* грн.

    Продажа квартиры ул. Межигорская 32 в Киеве / G-1995056

  • Продажа квартиры ул. Данченко Сергея 28 в Киеве / Q-28231 (ул. Данченко Сергея, 28) 3 709 000* грн.

    Продажа квартиры ул. Данченко Сергея 28 в Киеве / Q-28231

  • Продажа квартиры ул. Выговского Ивана (Гречко Маршала) 44 в Киеве / W-7436518 (ул. Выговского Ивана (Гречко Маршала), 44) 4 062 000* грн.

    Продажа квартиры ул. Выговского Ивана (Гречко Маршала) 44 в Киеве / W-7436518

  • Продажа квартиры ул. Змиенко Всеволода 15/23 в Киеве / W-7430833 (ул. Змиенко Всеволода, 15/23) 4 238 000* грн.

    Продажа квартиры ул. Змиенко Всеволода 15/23 в Киеве / W-7430833

  • Продажа квартиры ул. Данченко Сергея 28 в Киеве / R-57421 (ул. Данченко Сергея, 28) 3 753 000* грн.

    Продажа квартиры ул. Данченко Сергея 28 в Киеве / R-57421

  • Продажа квартиры ул. Выговского Ивана (Гречко Маршала) 12к в новостройке в Киеве / W-7443258 (ул. Выговского Ивана (Гречко Маршала), 12к) 4 106 000* грн.

    Продажа квартиры ул. Выговского Ивана (Гречко Маршала) 12к в новостройке в Киеве / W-7443258

  • Продажа квартиры ул. Выговского Ивана (Гречко Маршала) 10с в Киеве / Q-31762 (ул. Выговского Ивана (Гречко Маршала), 10с) 4 089 000 грн.

    Продажа квартиры ул. Выговского Ивана (Гречко Маршала) 10с в Киеве / Q-31762

  • Продажа квартиры Европейского Союза просп. (Правды просп.) 110/3 в новостройке в Киеве / Q-26208 (Европейского Союза просп. (Правды просп.), 110/3) 4 238 000* грн.

    Продажа квартиры Европейского Союза просп. (Правды просп.) 110/3 в новостройке в Киеве / Q-26208

  • Продажа квартиры ул. Перемышльская (Краснопольская) 2г в Киеве / W-7321051 (ул. Перемышльская (Краснопольская), 2г) 4 415 000* грн.

    Продажа квартиры ул. Перемышльская (Краснопольская) 2г в Киеве / W-7321051

  • Продажа квартиры ул. Змиенко Всеволода 15/23 в Киеве / W-7447428 (ул. Змиенко Всеволода, 15/23) 4 305 000* грн.

    Продажа квартиры ул. Змиенко Всеволода 15/23 в Киеве / W-7447428

  • Продажа квартиры ул. Набережно-Рыбальская 7 в Киеве / W-7442998 (ул. Набережно-Рыбальская, 7) 3 753 000* грн.

    Продажа квартиры ул. Набережно-Рыбальская 7 в Киеве / W-7442998