Зарегистрироваться /

Продажа квартиры Стратегическое шоссе 35 в Киеве / W-7431024

4-комнатная квартира
Цена:
5 468 000* грн.
$
124 000 $ (1$ = 44.1 грн.)
107 000 € (1€ = 51 грн.)
Кол-во комнат/Расположение:
Площадь (общая/жилая/кухни):
126/36.7/15.1
Этаж/Этажность:
2/3
Тип (серия) дома:
Сталинка
Материал стен:
Кирпич
Материал пола:
Комбинир.
Материал перекрытий:
Железобетон
Количество, тип санузлов:
2, Разд.
Парковка:
да
Ремонт (состояние):
с евроремонтом
мебель
балкон
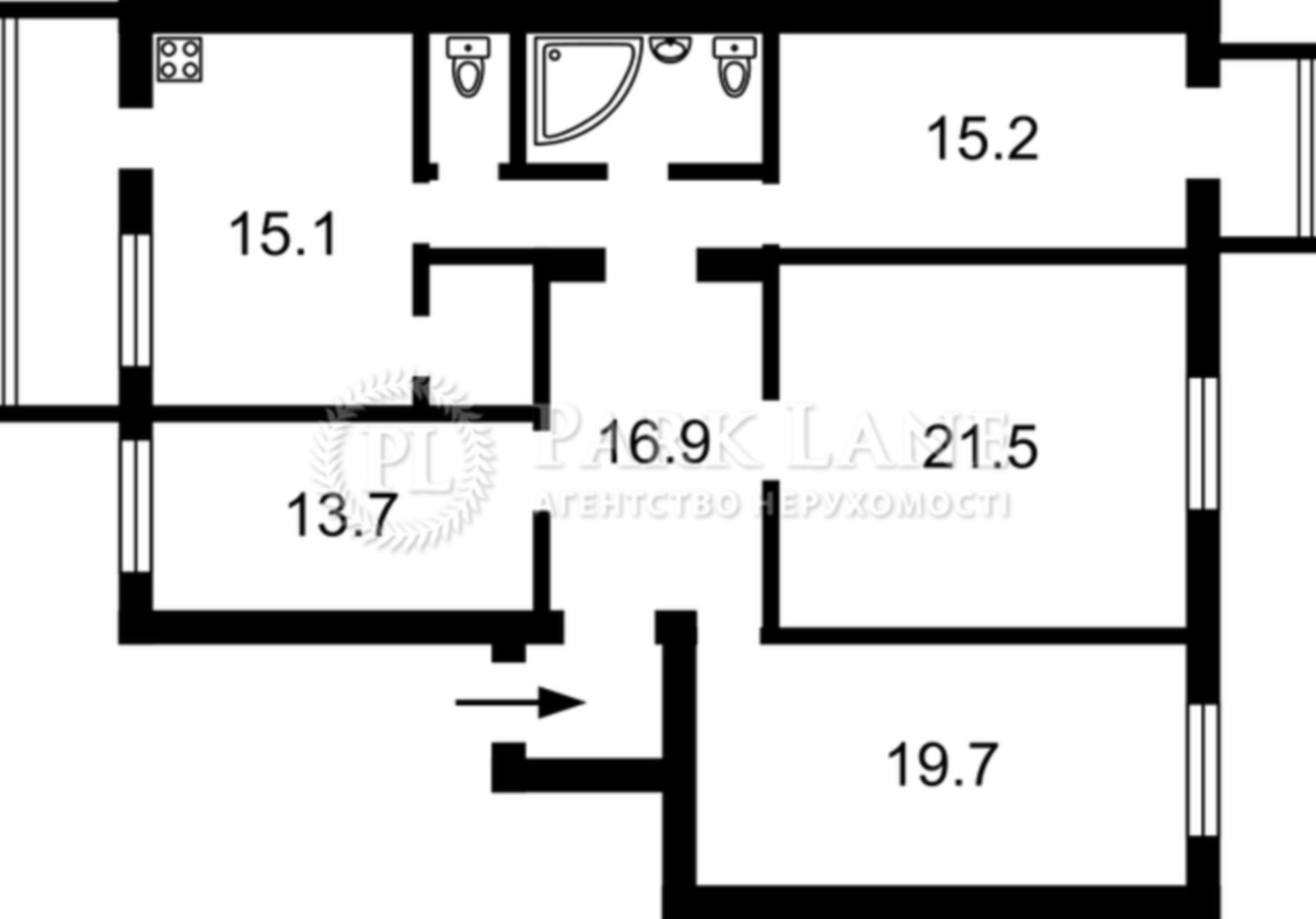
Пропонуємо до продажу простору 2-к квартиру площею 126 м² на 2-му поверсі в сталінському будинку 1961 року будівництва за адресою Київ, Стратегічне шосе, 35. Будинок пройшов капітальний ремонт у 1997 році, має цегляні стіни та комбіновані перекриття, що забезпечує надійність і відмінну звукоізоляцію. Висота стель 3,3 м створює відчуття простору та комфорту, а охайні під'їзди з кодовими замками та обслуговуванням ЖЕКу гарантують безпеку. Локація ідеальна для комфортного життя: всього 3 хвилини пішки до станції метро Деміївська та парку, 15 хвилин транспортом до центру міста. Район тихий і зелений, з вікнами на приватний сектор та двір, без проблем з паркуванням. Поруч Голосіївський парк, ВДНХ, історична Лиса Гора, 2 школи, гімназія та приватний дитсадок "Теремок". У будинку розташовані гастроном, аптека, ломбард і салон-перукарня "Оксі". Квартира в гарному стані, з практичним плануванням: велика кухня 15,1 м², просторі кімнати, окрема гардеробна, міні-спортзал і робоча зона.
Скачать .pdf

Посредник

Ірина

Обновлено: 6 Марта 2026
Код объекта: W-7431024
CAPTCHA CAPTCHA на основе изображений
Введите символы, изображенные на рисунке.

Пожаловаться на объявление

W-7431024 |

Укажите причину жалобы

Максимальное количество символов 500
CAPTCHA CAPTCHA на основе изображений
Введите символы, изображенные на рисунке.

Схожі оголошення

  • Продажа квартиры ул. Антоновича Владимира (Горького) 37/13 в Киеве / W-7403154 (ул. Антоновича Владимира (Горького), 37/13) 4 983 000* грн.

    Продажа квартиры ул. Антоновича Владимира (Горького) 37/13 в Киеве / W-7403154

  • Продажа квартиры ул. Заболотного Академика 15к1 в Киеве / W-7439118 (ул. Заболотного Академика, 15к1) 5 393 000* грн.

    Продажа квартиры ул. Заболотного Академика 15к1 в Киеве / W-7439118

  • Продажа квартиры ул. Максимовича Михаила (Трутенко Онуфрия) 32а в Киеве / W-7339314 (ул. Максимовича Михаила (Трутенко Онуфрия), 32а) 5 733 000* грн.

    Продажа квартиры ул. Максимовича Михаила (Трутенко Онуфрия) 32а в Киеве / W-7339314

  • Продажа квартиры ул. Антоновича Владимира (Горького) 37/13 в Киеве / W-7434384 (ул. Антоновича Владимира (Горького), 37/13) 5 513 000* грн.

    Продажа квартиры ул. Антоновича Владимира (Горького) 37/13 в Киеве / W-7434384

  • Продажа квартиры ул. Максимовича Михаила (Трутенко Онуфрия) 24г в Киеве / W-7442885 (ул. Максимовича Михаила (Трутенко Онуфрия), 24г) 5 557 000* грн.

    Продажа квартиры ул. Максимовича Михаила (Трутенко Онуфрия) 24г в Киеве / W-7442885

  • Продажа квартиры ул. Максимовича Михаила (Трутенко Онуфрия) 32а в Киеве / R-61084 (ул. Максимовича Михаила (Трутенко Онуфрия), 32а) 5 072 000* грн.

    Продажа квартиры ул. Максимовича Михаила (Трутенко Онуфрия) 32а в Киеве / R-61084

  • Продажа квартиры ул. Максимовича Михаила (Трутенко Онуфрия) 32в в Киеве / Q-29761 (ул. Максимовича Михаила (Трутенко Онуфрия), 32в) 5 513 000* грн.

    Продажа квартиры ул. Максимовича Михаила (Трутенко Онуфрия) 32в в Киеве / Q-29761

  • Продажа квартиры ул. Антоновича Владимира (Горького) 103а в Киеве / W-7438790 (ул. Антоновича Владимира (Горького), 103а) 5 336 000* грн.

    Продажа квартиры ул. Антоновича Владимира (Горького) 103а в Киеве / W-7438790

  • Продажа квартиры ул. Малевича Казимира (Боженко) 89 в Киеве / W-7437801 (ул. Малевича Казимира (Боженко), 89) 5 027 000* грн.

    Продажа квартиры ул. Малевича Казимира (Боженко) 89 в Киеве / W-7437801

  • Продажа квартиры ул. Максимовича Михаила (Трутенко Онуфрия) 26в в Киеве / W-7441353 (ул. Максимовича Михаила (Трутенко Онуфрия), 26в) 5 552 000* грн.

    Продажа квартиры ул. Максимовича Михаила (Трутенко Онуфрия) 26в в Киеве / W-7441353

  • Продажа квартиры ул. Ямская 35/34 в Киеве / W-7439121 (ул. Ямская, 35/34) 5 601 000* грн.

    Продажа квартиры ул. Ямская 35/34 в Киеве / W-7439121

  • Продажа квартиры ул. Малевича Казимира (Боженко) 89 в Киеве / L-31071 (ул. Малевича Казимира (Боженко), 89) 5 072 000* грн.

    Продажа квартиры ул. Малевича Казимира (Боженко) 89 в Киеве / L-31071