Зарегистрироваться /

Аренда Офиса Соборности просп. (Воссоединения) 30а в Киеве / W-7430775

Коммерческая недвижимость
Цена:
17 000 грн.
/месяц
$
392 $ (1$ = 43.35 грн.)
336 € (1€ = 50.6 грн.)
Профиль:
Площадь:
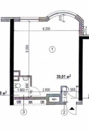
45 м²
Цена за м²:
377 грн.
Лівобережна,вул Соборності 30А, офіс 2 поверх не житловий фонд, 1 кабінет 44м добрий стан, кондіционер, вільний доступ 24/7.17000грн + комунальні.(Комісія 50%)
Скачать .pdf

Посредник

Олександр

Обновлено: 8 Января 2026
Код объекта: W-7430775
CAPTCHA CAPTCHA на основе изображений
Введите символы, изображенные на рисунке.

Пожаловаться на объявление

W-7430775 |

Укажите причину жалобы

Максимальное количество символов 500
CAPTCHA CAPTCHA на основе изображений
Введите символы, изображенные на рисунке.

Схожі оголошення