Зарегистрироваться /

Аренда Офиса ул. Владимирская 10 в Киеве / W-7429869

Коммерческая недвижимость
Цена:
317 000* грн.
/месяц
$
7 500 $ (1$ = 42.3 грн.)
6 360 € (1€ = 49.85 грн.)
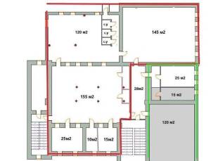
Оренда мебльваного офісу 500 м² у центрі Києва | Без комісії | Світло не вимикають Здається в оренду просторий офіс в офісному центрі, 3-й поверх, нежитловий фонд. Вул. Володимирська — самий центр Києва. Локація: 7 хв пішки до метро Майдан Незалежності 10 хв пішки до метро Золоті Ворота Планування: Загальна площа — 500 м² 3 open space 5 окремих кабінетів Серверна 3 санвузли Кухня Балкон Оснащення: Меблі Кондиціонери Інтернет-розводка Доступ 24/7 Світло не вимикають Паркінг: Є, 2500 грн/міс Умови оренди: 15 у.о./м² Комунальні послуги оплачуються окремо
Скачать .pdf

Посредник

ALAN

Обновлено: 29 Декабря 2025
Код объекта: W-7429869
CAPTCHA CAPTCHA на основе изображений
Введите символы, изображенные на рисунке.

Пожаловаться на объявление

W-7429869 |

Укажите причину жалобы

Максимальное количество символов 500
CAPTCHA CAPTCHA на основе изображений
Введите символы, изображенные на рисунке.

Схожі оголошення